Open this page in a new tab

Jerash Artemis Complex

 Figure 1

Sanctuary of Artemis: aerial view from 1986 (photo Antiquity Department of Jordan), from the East.

click on image to open in a new tab

Parapetti (1989b)


Introduction
ChatGPT Introduction

The sanctuary of Artemis crowns the western hill of Jerash, dominating the city and the valley of the Chrysorhoas. Laid out above the main colonnaded street, it formed a monumental holy precinct focused on the cult of Artemis, patron goddess of Gerasa. A broad processional axis led worshippers from the urban centre up towards the hilltop temenos, emphasizing both the physical and symbolic separation between the sacred terrace and the bustling city below.

Access to the sanctuary was controlled by a monumental propylaea complex on the cardo, with towering columns and a richly decorated triple gateway. From here, a long stairway and terraced platforms climbed the slope to the temenos courtyard in front of the great temple. The temple itself, a peripteral building raised on a high podium, was conceived on an impressive scale in the mid second century CE, although architectural details suggest that its construction remained incomplete, even while the precinct was already in use.

Systematic investigations and restorations by Italian missions have clarified the sanctuary’s phasing and later history. They document the creation of the approach bridge and terraces, successive building and repair campaigns, and the transformation of parts of the propylaea area into Christian and later installations. The sanctuary of Artemis thus preserves a layered record of Jerash’s urban and religious development from the high Roman period, through Late Antiquity, and into the early Islamic centuries.

Aerial Views, Plans, Sections, and Photos
Aerial Views, Plans, Sections, and Photos

Aerial Views

  • Jerash Artemis Complex in Google Earth
  • Fig. 1 Aerial View of the Sanctuary of Artemis from Parapetti (1989b)

Plans

Site Plans

Normal Size

  • Site Plan of Jerash from Wikipedia

Magnified

  • Site Plan of Jerash from Wikipedia

Area Plans

Sanctuary of Artemis

Normal Size

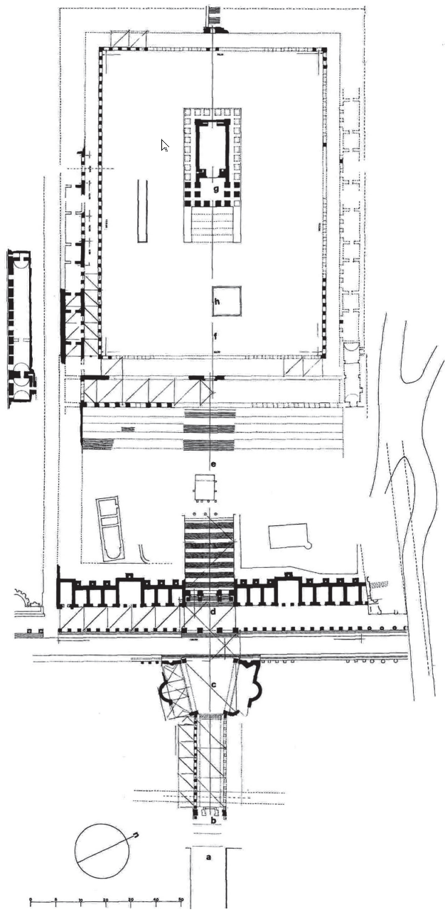
  • Plate IV Plan of the Sanctuary of Artemis from Parapetti (1989b)
  • Fig. 3.2 Plan of the Sanctuary of Artemis from Baldoni (2018)

Magnified

  • Plate IV Plan of the Sanctuary of Artemis from Parapetti (1989b)
  • Fig. 3.2 Plan of the Sanctuary of Artemis from Baldoni (2018)

Area of the kilns and in the Area of the Temple Stairway

Normal Size

  • Fig. 8 Plan of soundings in the Area of the kilns and in the Area of the Temple Stairway from Parapetti et al. (1986)

Magnified

  • Fig. 8 Plan of soundings in the Area of the kilns and in the Area of the Temple Stairway from Parapetti et al. (1986)

Sections

Sanctuary of Artemis

Normal Size

  • Plate II Section from Parapetti (1989c)

Magnified

  • Plate II Section from Parapetti (1989c)

Photos

Normal Size

  • Fig. 3.41c Block separation and shearing and through-going cracks in the outer wall west of the Artemis cella from Boyer (2022)

Magnified

  • Fig. 3.41c Block separation and shearing and through-going cracks in the outer wall west of the Artemis cella from Boyer (2022)

Archaeoseismic Chronology
Temple Stairway Earthquake - 8th century CE

Discussion

Discussion

References
Parapetti et al. (1986)

3. The Area of the Temple Stairway

... The hollow G in the N-W corner dropped down underneath the north wall of the podium where a stone is missing. The pottery finds, of the same type as those in the cistern, were here associated with a bronze coin of Hadrian.

At the centre of the area there was a hollow 0.15 m deep and plastered in lime mortar, served by an inlet and an outlet channel, presumably connected with the clay-working process. Once the plastered bottom was removed, a pit H (1.46 m deep, 1.05 × 0.53 m) was uncovered. The earth which filled it up presented the same characteristics found in the other foci, as well as the same materials. Of particular note is a large amphora (Pl. IX.1), some round moulded lamp fragments, kalathoi, and plates, all datable to the 1st–2nd century A.D. (Fig. 9 nos. 1, 2).

The second step of the bedrock probably corresponds to the starting point of the intermediate of the three flights which originally made up the stairway, while its easternmost edge presents a clear cut against which the irregular block foundations of the first steps of the stairway were identified (Fig. 11.1).

None of the sherds in the area can be dated prior to the 7th century A.D. (large grey basins with combed and cut decoration, cups with large umbilical bottom, cooking pots, jars, painted plates and lids (Fig. 9 nos. 13, 16, 17), and above all many of the so-called "Jerash type" lamps, badly fired (Pl. IX.2)).

Finally we removed the two above-mentioned column drums. Like the other two lying further south, they were probably part of the column of the N-E corner of the Temple pronaos, which perhaps collapsed during the earthquake of 746 A.D., after which the activity of the pottery ceased. Below, the soil became dark and compacted with fragments of Umayyad pottery, pertaining to the same shapes found in kiln D and in the area just described
.

The outside face of some blocks of the east wall of the N-S channel, a segment of which was earlier identified, came to light to the east at (600.23) level. They were identifiable for the presence of calcareous concretions due to water infiltration. Underneath these (599.93) a layer of cemented pottery fragments and rubble was identified, which arrived at the level of the starting of the original stairway.

Two periods of use of the area examined became evident from a comparative study of the structures and materials brought to light. The terminus post quem of the first is given by the Roman pottery associated with the Hadrian coin, which perhaps establishes the moment in which the pits in the bedrock were filled in, in order to build the stairway leading up to the pronaos.

The second seems restricted to a short period (first half of the 8th century A.D.), according to the homogeneity of the finds.

Some problems remain, however, and relevant amongst these is the lack of evidence datable between the 2nd century A.D. (obviously cancelled by later occupation) and the 8th century (after the earthquake of 746 A.D.), which would bear witness to occupation leading up to and following the activity of the kiln. It is to be hoped that future work, during which it is planned to investigate as far as the southern wing of the podium and to remove the present-day stairs, will give us the final evidence necessary to complete the overall picture of the different phases of life in the area under examination.

Parapetti (1989c)

English

Above the rock surface, a single level of Umayyad occupation is recognizable throughout the rooms. This was sealed by the collapse of the vaults of the original Roman structures, which were then damaged by the earthquake of 747. This event inevitably caused the simultaneous dragging of the buildings along the eastern edge of the Byzantine elevation of the Intermediate Terrace: evidence of this is the hanging section of a large apsidal structure adjacent to chapel20 (b) (Plate II). Among the earth that covered the rubble of the vaults, a fragment of a crescent-shaped altar table made of Anatolian marble is noteworthy.
Footnotes

20 illegible in my copy - a reference starts with a P and the year of 1983 (?)

Italian

Al di sopra del piano di roccia e riconoscibile in tutta gli ambienti un solo livello di occcupazione omayyade. Questo e sigillato dal crollo delle volte delle strutture romane originarie impulabde quindi al terremoto del 747. L'evento provoco l'inevitabile simultaneo trascinamento di quanto edificaato presso il margine orientale del rialzamento bizantino della terrazza Intermedia: prova ne e il troncone pensile di una struttura absidata di notevoli dimensionei adiacente alla cappella20 (b) (tav. II). Tra la terra che ricopriva le macerie delle volte e da segnalare una mensa d'altare lunata frammentaria di marmo anatolico.
Footnotes

20 illegible in my copy - a reference starts with a P and the year of 1983 (?)

Boyer in Lichtenberger and Raja (2025)

Century (AD) Event (AD) attribution
by original author
Reliability of
interpreted evidence
Likely attributable
seismic event (AD)
Locality Plan ref. Reference
8th 747 Medium 747–749 Artemis complex 4 Parapetti 1989, 10; Parapetti and others 1986, 191–92.

Archaeoseismic Effects
Temple Stairway Earthquake - 8th century CE

Seismic Effect                          Location Image(s) Description
  • Collapsed Column ?
The Area of the Temple Stairway of the Artemis Complex


  • "Finally we removed the two above-mentioned column drums. Like the other two lying further south, they were probably part of the column of the N-E corner of the Temple pronaos, which perhaps collapsed during the earthquake of 746 A.D., after which the activity of the pottery ceased. Below, the soil became dark and compacted with fragments of Umayyad pottery, pertaining to the same shapes found in kiln D and in the area just described." - M.C. Bitti in Parapetti et al. (1986:191-192)
  • Collapsed Valut
Artemis Complex


  • "Above the rock surface, a single level of Umayyad occupation is recognizable throughout the rooms. This was sealed by the collapse of the vaults of the original Roman structures, which were then damaged by the earthquake of 747. This event inevitably caused the simultaneous dragging of the buildings along the eastern edge of the Byzantine elevation of the Intermediate Terrace: evidence of this is the hanging section of a large apsidal structure adjacent to chapel20 (b) (Plate II). Among the earth that covered the rubble of the vaults, a fragment of a crescent-shaped altar table made of Anatolian marble is noteworthy." - Parapetti (1989c:10)

Archaeoseismic Intensity Estimates
Temple Stairway Earthquake - 8th century CE

Seismic Effect                          Location Image(s) Description Intensity
  • Collapsed Column ?
The Area of the Temple Stairway of the Artemis Complex


  • "Finally we removed the two above-mentioned column drums. Like the other two lying further south, they were probably part of the column of the N-E corner of the Temple pronaos, which perhaps collapsed during the earthquake of 746 A.D., after which the activity of the pottery ceased. Below, the soil became dark and compacted with fragments of Umayyad pottery, pertaining to the same shapes found in kiln D and in the area just described." - M.C. Bitti in Parapetti et al. (1986:191-192)
  • V+?
  • Collapsed Valut
Artemis Complex


  • "Above the rock surface, a single level of Umayyad occupation is recognizable throughout the rooms. This was sealed by the collapse of the vaults of the original Roman structures, which were then damaged by the earthquake of 747. This event inevitably caused the simultaneous dragging of the buildings along the eastern edge of the Byzantine elevation of the Intermediate Terrace: evidence of this is the hanging section of a large apsidal structure adjacent to chapel20 (b) (Plate II). Among the earth that covered the rubble of the vaults, a fragment of a crescent-shaped altar table made of Anatolian marble is noteworthy." - Parapetti (1989c:10)
  • VIII+
The archeoseismic evidence requires a minimum Intensity of VIII (8) when using the Earthquake Archeological Effects chart of Rodríguez-Pascua et al (2013: 221-224).

Notes and Further Reading
References
Earthquake Damage in Jerash between the 1st and 19th centuries CE

Map

  • from Lichtenberger and Raja (2025)
  • Table 2.2 List of seismic damage in Jerash between the 1st and 19th centuries CE from Lichtenberger and Raja (2025)
 Figure 2.6

Plan of ancient Gerasa showing the location of earthquake-damaged sites referred to in Table 2.2

(after Lichtenberger, Raja, and Stott 2019.fig.2)

Click on Image to open in a new tab

Lichtenberger and Raja (2025)


Table

Table

  • from Lichtenberger and Raja (2025)
  • Fig. 2.6 Map of seismic damage in Jerash between the 1st and 19th centuries CE from Lichtenberger and Raja (2025)
Century (AD) Event (AD) attribution
by original author
Reliability of
interpreted evidence
Likely attributable
seismic event (AD)
Locality Plan ref. Reference
1st–3rd Medium 112 North-west aqueduct 5 Passchier and others 2021.
3rd–early 4th Medium 363 Zeus Temple 13 Egan and Bikai 1998, 598.
3rd–early 4th Medium 551 East cavea of Hippodrome 14 Ostrasz 1989, 74–76.
6th Late 6th Medium 551 Lower terrace, Zeus Temple 12 Rasson and Seigne 1989, 151; Egan and Bikai 1998, 598; Rasson-Seigne and Seigne 2019.
7th 633–660 High 659 Propylaea Church 16 Brizzi, Seipo, and Baldoni 2010, 356–57.
7th 659/660 High 659 Macellum 10 Uscatescu 2019, 22, table 2.2.
7th 660 Medium 659 Taberna, thermopolium 6 Baldoni 2018, 26–27; 2019, 121–22.
7th 659/660 Medium 659 Hippodrome 14 Kehrberg and Ostrasz 1994, 546–47.
7th 659/660 Medium 659 Zeus Temple–Naos corridor 12 Rasson-Seigne and Seigne 2019, 168.
8th 749 High 747–749 Umayyad Mosque 9 Rattenborg and Blanke 2017.
8th 749 High 747–749 House adjacent to Mosque 3 Rattenborg and Blanke 2017, 319–24.
8th 749 High 747–749 Propylaea Church 16 Brizzi, Seipo, and Baldoni 2010, 358.
8th 749 High 747–749 North-West Quarter, various 1 Jørgensen 2018; Lichtenberger and Raja 2019a, 277–78; 2019b.
8th 749 High 747–749 South Decumanus, east side 8 Walmsley 2007, 259–61.
8th 747–749 High 747–749 Beside aqueduct (site JWP111) 18 Boyce 2022, 74.
8th Medium 747–749 Bishop Marianos Church 15 Gawlikowski and Musa 1986, 141.
8th 747 Medium 747–749 Artemis complex 4 Parapetti 1989, 10; Parapetti and others 1986, 191–92.
8th 749 Medium 747–749 Zeus Temple, various sites 13 Seigne 1986, 247; 1989, 322; Rasson-Seigne and Seigne 2019.
8th 749 Medium 747–749 Bishop Isaiah Church 2 Clark 1990, 176.
8th 749 Medium 747–749 Hippodrome 14 Ostrasz 2020, 33.
8th 749 Medium 747–749 Large East Baths 17 Lepaon, Turshan, and Weber-Karyotakis 2018.
9th Post-770 High 854 Umayyad House, South Decumanus 7 Gawlikowski 1986, 113.
9th 9th High 854 Congregational Mosque 9 Rattenborg and Blanke 2017, 321.
9th 9th Medium 854 South-West Quarter 11 Rattenborg and Blanke 2017, 324; Blanke 2018, 44.
11th–13th 11th–13th Medium ? Zeus lower terrace 12 Rasson-Seigne and others 2018, 74–75.
19th 1837 Medium 1837 City area (Earthquake witnessed) Lindsay 1838, 107.

Image

  • from Lichtenberger and Raja (2025)
  • Fig. 2.6 Map of seismic damage in Jerash between the 1st and 19th centuries CE from Lichtenberger and Raja (2025)
 Table 2.2

List of seismically induced damage recorded in Gerasa where the relaibility of the evidence is considered to be medium or high

Click on Image to open in a new tab

Lichtenberger and Raja (2025)


Wikipedia pages

Jerash

  • from wikipedia - click link to open page in a separate tab


Temple of Artemis

  • from wikipedia - click link to open page in a separate tab