| Transliterated Name | Language | Name |
|---|---|---|
| Umm al-Jimal | Arabic | ام الجمال |
| Umm al-Jamal | Arabic | ام الجمال |
| Umm ej Jemāl | Arabic | ام الجمال |
| Umm idj-Djimal | Arabic | ام الجمال |
| al-ʾHerrī - local name for older Roman village | Arabic | الءهيرري |
Umm el-Jimal is an extensive rural settlement constructed of black basalt in the lava lands east of Mafraq, a seventy-minute drive northeast of Amman, Jordan (39°19' N, 36°22' E). One of the largest and most spectacular archaeological sites in Jordan, Umm el-Jimal is located on tire edge of a series of volcanically formed basalt flows that slope down from the Jebel al-Druze, a mountain 50 Ion (31 mi.) to the northeast. This sloping black bedrock provided ancient Umm el-Jimal with two basic resources: stone for constructing sturdy houses and water for drinking and agriculture. The ancient name of the site is not known. David L. Kennedy has argued convincingly that Thantia, Howard C. Butler's suggested name (see below), is better located to the west on the Via Nova (Kennedy and Riley, 1982, pp. 148- 152). Flenry I. MacAdam (1986) has put forward Surattha, from Ptolemy's Geography, as an alternative.
Umm el-Jimal is a rural town in northeastern Jordan, constructed on the edge of a basalt flow extending from Jebel el-Druze. The site is remarkably well preserved, with over 150 buildings standing, some up to their third story. A small village under Nabatean and Roman influences existed at the site from the first to third centuries CE. A castellum was built circa 300 CE, replaced late in the fourth century by barracks, much smaller in size. In the fifth and sixth centuries, the imperial military presence at the site diminished, and the town prospered, witness to the construction of 15 churches. During the last decades of the sixth century, the site suffered the twin ravages of plague and Persian invasions. The Umayyad conquest brought centralized authority to the site, and it was inhabited without interruption until its abandonment following the earthquake of 748/749 CE (see below, The Islamic Period, in this entry). It was only resettled by the Druze in 1910–1935.
Umm al-Jimal
Fig. 3
Fig. 2
2. Map of southern section of Umm al-Jimal showing the location of house 119.
Fig. 3
Fig. 2
2. Map of southern section of Umm al-Jimal showing the location of house 119.
Fig. 4
Fig. 4
Plate 2.3
Plate 3.1
Figure 3.2
Figure 3.3
Longshot of the barracks in Umm al-Jimal
Park signage of the barracks in Umm al-Jimal
U shaped cutout at the barracks in Umm al-Jimal
Reconstructed U shaped cutout at the barracks in Umm al-Jimal
Reconstructed U shaped cutout next to U shaped cutout at the barracks in Umm al-Jimal
Tilted and Bulged Wall at the barracks in Umm al-Jimal
Stroingly tilted wall at the barracks in Umm al-Jimal
Stroingly tilted wall at the barracks in Umm al-Jimal
Stroingly tilted wall at the barracks in Umm al-Jimal
Stroingly tilted wall at the barracks in Umm al-Jimal
Tilted Wall at the barracks in Umm al-Jimal
Tilted Wall in the barracks in Umm al-Jimal
Bulged Wall in the barracks in Umm al-Jimal
Through-going cracks at the barracks in Umm al-Jimal
Displaced and Fractured Ashlars in the barracks in Umm al-Jimal
Displaced and Fractured Ashlars in the barracks in Umm al-Jimal
Plate 2.3
Plate 3.1
Figure 3.2
Figure 3.3
Longshot of the barracks in Umm al-Jimal
Park signage of the barracks in Umm al-Jimal
U shaped cutout at the barracks in Umm al-Jimal
Reconstructed U shaped cutout at the barracks in Umm al-Jimal
Reconstructed U shaped cutout next to U shaped cutout at the barracks in Umm al-Jimal
Tilted and Bulged Wall at the barracks in Umm al-Jimal
Stroingly tilted wall at the barracks in Umm al-Jimal
Stroingly tilted wall at the barracks in Umm al-Jimal
Stroingly tilted wall at the barracks in Umm al-Jimal
Stroingly tilted wall at the barracks in Umm al-Jimal
Tilted Wall at the barracks in Umm al-Jimal
Tilted Wall in the barracks in Umm al-Jimal
Bulged Wall in the barracks in Umm al-Jimal
Through-going cracks at the barracks in Umm al-Jimal
Displaced and Fractured Ashlars in the barracks in Umm al-Jimal
Displaced and Fractured Ashlars in the barracks in Umm al-Jimal
Longshot of the four arches in the West Church in Umm al-Jimal
Arch Impost Damage for one of the four arches in the West Church in Umm al-Jimal
Arch Impost Damage for one of the four arches in the West Church in Umm al-Jimal
Closeup of Arch Impost Damage for one of the four arches in the West Church in Umm al-Jimal
Arch Impost Damage for one of the four arches in the West Church in Umm al-Jimal
Closeup of Arch Impost Damage for one of the four arches in the West Church in Umm al-Jimal
Arch Impost Damage for one of the four arches in the West Church in Umm al-Jimal
Closeup of Arch Impost Damage for one of the four arches in the West Church in Umm al-Jimal
Splalled corners in the West Church in Umm al-Jimal
Cracks in the West Church in Umm al-Jimal
Lintel Stress Damage in the West Church in Umm al-Jimal
View of subsurface in vicinity of the West Church in Umm al-Jimal
Longshot of the four arches in the West Church in Umm al-Jimal
Arch Impost Damage for one of the four arches in the West Church in Umm al-Jimal
Arch Impost Damage for one of the four arches in the West Church in Umm al-Jimal
Closeup of Arch Impost Damage for one of the four arches in the West Church in Umm al-Jimal
Arch Impost Damage for one of the four arches in the West Church in Umm al-Jimal
Closeup of Arch Impost Damage for one of the four arches in the West Church in Umm al-Jimal
Arch Impost Damage for one of the four arches in the West Church in Umm al-Jimal
Closeup of Arch Impost Damage for one of the four arches in the West Church in Umm al-Jimal
Splalled corners in the West Church in Umm al-Jimal
Cracks in the West Church in Umm al-Jimal
Lintel Stress Damage in the West Church in Umm al-Jimal
View of subsurface in vicinity of the West Church in Umm al-Jimal
| Stratum | Period | Age | Notes |
|---|---|---|---|
| VII | Early Roman | 63 BCE - 135 CE | |
| VI | Late Roman | 135 CE - 324 CE | |
| V | Early Byzantine | 324 CE - 491 CE | |
| IV | Late Byzantine | 491 CE - 636 CE | Earthquakes ? |
| III | Umayyad | 636 CE - 750 CE | Earthquake ? |
| Post Stratum III Gap | 750 CE - 1900 CE | ||
| II | Late Ottoman/Mandate | 1900 CE - 1946 CE | |
| I | Modern | 1946 CE - Present |
Umm al-Jimal (Jordan). The walls of the deserted Byzantine city of Umm al-Jimal in northern Jordan bear various traces of earthquake destruction. Archaeoseismological analysis comprises tilted and bulged walls, U-shaped collapse features, and rotation and extension features. These deformations indicate that at least two earthquakes struck the region (Figs. 3.2 and 3.3). The first one occurred in the late Byzantine period (between 491 and 636 AD). Restoration followed, but a second earthquake destroyed the town at the end of the Umayyad Caliphate (661 AD–750 AD). This last damage was not repaired and the site has been abandoned ever since.
Umm al-Jimal (Jordan). The walls of the deserted Byzantine city of Umm al-Jimal in northern Jordan bear various traces of earthquake destruction. Archaeoseismological analysis comprises tilted and bulged walls, U-shaped collapse features, and rotation and extension features. These deformations indicate that at least two earthquakes struck the region (Figs. 3.2 and 3.3). The first one occurred in the late Byzantine period (between 491 and 636 AD). Restoration followed, but a second earthquake destroyed the town at the end of the Umayyad Caliphate (661 AD–750 AD). This last damage was not repaired and the site has been abandoned ever since.
... Umm al-Jimal consists not only of the uniquely preserved town, but also a ruined adjacent early village, a complex water system with elements in and around the town, numerous fields and gardens, as well as many tombs and cemeteries in the environs — and many of these elements have been subject to survey and/or excavation. For the purposes of this essay, however, the excavations in the town are most pertinent, as they are the ones that have yielded the best architectural and stratigraphic data from the eighth century. There are thirteen excavations that might offer a glimpse into eighth-century Umm al-Jimal:
6 Osinga 2017.
7 Osinga 2020.
8 Early Abbasid pottery shows strong continuity with late
Umayyad pottery: Alan Walmsley’s discussion and analysis of
later eighth- to mid-ninth-century pottery from Pella and from
Tell al-Husn is particularly instructive, outlining the continuity
in wares and forms, and noting the new types that appear near
the end of the eighth century — namely Islamic cream ware and
glazed wares (Walmsley and others 1993, 210-18; McNicoll and
others 1986, 193-94). Without very good stratigraphic evidence
or the presence of wares or forms known to appear in the late
eighth and ninth centuries, it is very difficult to separate late
Umayyad from early Abbasid pottery. At Umm al-Jimal, where
the average sherd weight is 5 g or less, dating these tiny sherd
fragments, mostly from pot bodies, must be done cautiously.
At Jerash, a key pottery supplier of Umm al-Jimal and many
other sites in the region, Umayyad and Abbasid ceramics are
linked by typological and ware/fabric continuation (Rattenborg
and Walmsley 2013, 101).
9 Walmsley 2007c.
10 For example, Blanke, Lorien, and Rattenborg 2010;
Walmsley and others 2008; Blanke and others 2007;
Rattenborg and Blanke 2017.
11 Ambraseys 2006, 1015.
12 Sintubin 2013.
13 Stiros 1996, 142.
14 Stiros 1996, 142-43; Sintubin 2009, 7-8.
Of the eight pertinent excavations, three have been published: the Praetorium,15 Barracks,16 and House 49 / the Roman Temple.17 The remaining houses and churches were remarked on in preliminary publications.18
15 Brown 1998.
16 Parker 1998a.
17 Parker 1998b; Parker and De Veaux 1998.
18 De Vries and others 2016; de Vries 1993; 1995..
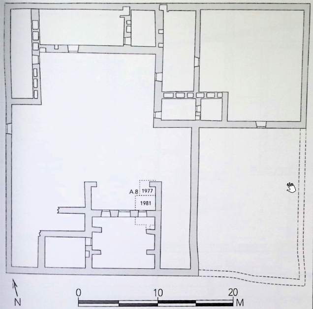
While originally an imperial administrative building, the Praetorium became a domestic structure in the Byzantine period after it lost its military / political function. Excavated in 1977 and 1981, with preliminary results published by Brown,19 it is an unusual building at Umm al-Jimal: the cruciform room and the atrium are particularly unique features at the site and in the wider region (Fig. 11.3).
19 Brown 1998.
20 Osinga 2017, 190-203
21 Type III.1.1.2 (Avissar and Stern 2005, 124), from the second half of the twelfth century through c. fourteenth century.
22 Brown 1998, 178. 187.
23 Brown 1998. 179, 184, 187.
24 Parker 1998b: Parker and De Veaux 1998.
25 Parker and Dc Veaux 1998, 158.
Excavations in the North-East Church revealed some of the earliest well-documented collapse, which was in fact from the Late Byzantine period — perhaps caused by the 551 earthquake, as proposed by the original excavators.26 The apse was not reused after this mid-sixth-century destruction, but the aisles and nave were refloored and in use in the Umayyad period, and a chancel barrier and screen were installed.27 While the apse was partially obstructed by a single-course wall, it was unlikely to have been converted into a mosque: material culture, such as marble chancel fragments found above the Umayyad- period floors, suggests that the structure was still used as a church and that the short wall served to block off the collapse in the apse.28 A small room against the south- west wall of the church was originally dated to the Druze period, but could alternatively be Middle Islamic in date.
26 Coughcnour n.d., 8.
27 De Vries 1993, 448
28 Coughenour n.d., 15-16.
29 Coughenour n.d., 18.
30 De Vries 1993, 448. The stratigraphy of the church will
be presented in full in a future UJAP volume; currently,
archaeological work concerning the churches in their social context is progressing.
Only one trench was excavated inside House XIV,31 located against the wall of a room or small courtyard (Fig. 11.9). Some walls of the house may date from the Late Roman or Early Byzantine period, but the structure was clearly in use in later Byzantine and Islamic times: flooring traces (flagstone and pebble/earth) were dated to the Late Byzantine period. One layer of major collapse was uncovered beneath the topsoil and above evidence of occupation which included cooking of early Islamic or later date. Few ceramic or other finds render dating difficult, and thus this collapse is best characterized as mid-eighth century or later in date.
31 de Vries 1993.
32 de Vries 1995, 429–30.
33 de Vries 1995, 430.
34 de Vries 1995, 430.
35 de Vries 1995, 430.
36 Osinga 2017, 105–191.
37 Osinga 2017, 125–127.
38 Osinga 2017, 125–127.
39 Osinga 2017, 300.
Assessing the evidence taken from different parts of the site, it is clear that the earthquake did not “destroy” Umm al-Jimal. There may well have been damage, and it may have been a deciding factor for some in whether to leave the site; however, we have not yet uncovered evidence of serious town-wide or even single-building destruction. While an earthquake is never a boon to a site, neither is it necessarily a prelude to its populace relocating. To understand eighth-century Umm al-Jimal, we must examine the overarching social, economic, and environmental context alongside the archaeological evidence.
40 Walmsley 2005; 2007b.
41 Walmsley 2000; 2007a; 2010; 2012.
42 Di Segni 1999.
43 Walmsley 2007b, 337; 2005, 517-518.
44 Sartre 1985, 129-132.
45 de Vries 1998c, 232.
46 Michel 2011.
47 de Vries 2000, 45.
48 Bessard 2013; Walmsley 2007b, 344-349.
49 Walmsley 2000, 270-71, 274-90.
50 This lack of comparative ceramic data from the badiyah prompted the author
to undertake the first detailed ware/fabric study of survey pottery from three sites:
Umm es-Surab, Khirbet es-Samra, and Deir al-Kahf (Osinga 2017, 245-71).
The analysis hints at both strong similarities and potential differences that require further study.
51 Dc Vries 1998c, 240.
52 Little 2007.
53 PhD candidate Jessi Spencer (Southern Illinois University) is in the process of analysing some of the skeletal remains.
Sa Walmsley 2000, 271.
55 Dc Vries 1998c, 239-40.
56 McCormick and others 2012, 201-02, 217-19.
57 Lucke and others 2012.
58 Akkermans 2020; Huigens 2019.
While the AD 749 earthquake may have caused destabilization of some structures and collapse of certain features at Umm al-Jimal (e.g. parts of the Numerianos Church), the archaeological record reveals no significant destruction that can be conclusively and solely dated to the mid-eighth century. In large part due to the inability to separate mid- and later eighth-century pottery, as well as a lack of coin-secured deposits or other chronologically significant finds, it is not possible to finely date the settled population’s abandonment of the site. Yet by drawing upon a spatially wide range of archaeological investigations across the site, patterns in the data nonetheless emerge, showing that the great earthquake is not a simple scapegoat for what was surely a complicated political, environmental, and/or socio-economic process of change.
| Effect | Location | Image(s) | Description |
|---|---|---|---|
|
Barracks
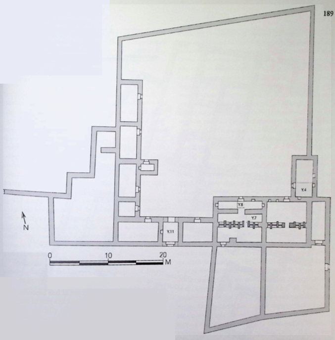
Fig. 4Plan of the castellum Drawn by Bert de Vries de Vries (1993) |
Plate 2.3Umm al-Jimal: general view of the Barracks Photo A. Walmsley de Vries (2000)
Plate 3.1Umm al·Jimal: detail of the west facade of the Barracks Photo A. Walmsley de Vries (2000)
Figure 3.2Umm al-Jimal. Barracks: view of the western towers from the courtyard. The U-shaped collapse scar of the third-floor wall is a typical mark of seismic shaking. Note the rotated block on the right side of the scar and the twisted wall on the left side of the photo: these are further indicators of lateral loading, twisting, and collapse of walls. Kázmér et al. (2024)
Figure 3.3Umm al-Jimal. Barracks, western wall. Note the twisted walls below the U-shaped collapse feature. The wall closer to the viewer is tilted inwards, the farther one is bulging outwards. These are clear markers of repeated, strong lateral loading Kázmér et al. (2024) |
|
|
Northeast Church |
|
| Effect | Location | Image(s) | Description |
|---|---|---|---|
|
Barracks
Fig. 4Plan of the castellum Drawn by Bert de Vries de Vries (1993) |
Plate 2.3Umm al-Jimal: general view of the Barracks Photo A. Walmsley de Vries (2000)
Plate 3.1Umm al·Jimal: detail of the west facade of the Barracks Photo A. Walmsley de Vries (2000)
Figure 3.2Umm al-Jimal. Barracks: view of the western towers from the courtyard. The U-shaped collapse scar of the third-floor wall is a typical mark of seismic shaking. Note the rotated block on the right side of the scar and the twisted wall on the left side of the photo: these are further indicators of lateral loading, twisting, and collapse of walls. Kázmér et al. (2024)
Figure 3.3Umm al-Jimal. Barracks, western wall. Note the twisted walls below the U-shaped collapse feature. The wall closer to the viewer is tilted inwards, the farther one is bulging outwards. These are clear markers of repeated, strong lateral loading Kázmér et al. (2024) |
|
|
the Roman Temple (erroneously named the “Nabataean Temple” by Howard Butler), which was later converted into a domestic structure, known as House 49 |
|
|
|
Numerianos Church complex |
|
|
|
House XIV |
|
|
|
House 119 |
|
|
|
House XVII–XVIII |
|
Earthquake Archeological Effects (EAE)| Effect | Location | Image(s) | Description | Intensity |
|---|---|---|---|---|
|
Barracks
Fig. 4Plan of the castellum Drawn by Bert de Vries de Vries (1993) |
Plate 2.3Umm al-Jimal: general view of the Barracks Photo A. Walmsley de Vries (2000)
Plate 3.1Umm al·Jimal: detail of the west facade of the Barracks Photo A. Walmsley de Vries (2000)
Figure 3.2Umm al-Jimal. Barracks: view of the western towers from the courtyard. The U-shaped collapse scar of the third-floor wall is a typical mark of seismic shaking. Note the rotated block on the right side of the scar and the twisted wall on the left side of the photo: these are further indicators of lateral loading, twisting, and collapse of walls. Kázmér et al. (2024)
Figure 3.3Umm al-Jimal. Barracks, western wall. Note the twisted walls below the U-shaped collapse feature. The wall closer to the viewer is tilted inwards, the farther one is bulging outwards. These are clear markers of repeated, strong lateral loading Kázmér et al. (2024) |
|
|
|
Northeast Church |
|
|
Kázmér et al. (2024:33) estimated a local intensity of VII (7).
Earthquake Archeological Effects (EAE)| Effect | Location | Image(s) | Description | Intensity |
|---|---|---|---|---|
|
Barracks
Fig. 4Plan of the castellum Drawn by Bert de Vries de Vries (1993) |
Plate 2.3Umm al-Jimal: general view of the Barracks Photo A. Walmsley de Vries (2000)
Plate 3.1Umm al·Jimal: detail of the west facade of the Barracks Photo A. Walmsley de Vries (2000)
Figure 3.2Umm al-Jimal. Barracks: view of the western towers from the courtyard. The U-shaped collapse scar of the third-floor wall is a typical mark of seismic shaking. Note the rotated block on the right side of the scar and the twisted wall on the left side of the photo: these are further indicators of lateral loading, twisting, and collapse of walls. Kázmér et al. (2024)
Figure 3.3Umm al-Jimal. Barracks, western wall. Note the twisted walls below the U-shaped collapse feature. The wall closer to the viewer is tilted inwards, the farther one is bulging outwards. These are clear markers of repeated, strong lateral loading Kázmér et al. (2024) |
|
|
|
the Roman Temple (erroneously named the “Nabataean Temple” by Howard Butler), which was later converted into a domestic structure, known as House 49 |
|
|
|
|
Numerianos Church complex |
|
|
|
|
House XIV |
|
|
|
|
House 119 |
|
|
|
|
House XVII–XVIII |
|
|
Al-Tawalbeh et al (2019) estimated a SW-NE strong motion direction and intensities of VII-VIII (7-8) using the Earthquake Archeological Effects chart of Rodríguez-Pascua et al (2013: 221-224).
Kázmér et al. (2024:33) estimated a local intensity of IX (9).
Al-Tawalbeh, M. A.., Rasheed Jaradat, Abdulla al-Rawabdeh, Khaled al-Bashaireh, Anne Gharaibeh, Bilal al-Khrisat (2019).
The Roman Barracks at Umm el-Jimal, Northern Jordan: an Archaeoseismological Analysis.
Conference: Routes, Goods, and Ties; Recent Discoveries and Problems of Southern Levantine Archaeology. Karakow, Poland.
de Vries, B. (1993) The Umm el-Jimal Project:1981-1992
de Vries, B. (1995) The 1993 and 1994 Field Seasons at Umm al-Jimal
de Vries, B. (2000). "Continuity And Change In The Urban Character Of The Southern Hauran From The 5th To The 9th Century:
The Archaeological Evidence At Umm Al-Jimal." Mediterranean Archaeology 13: 39-45.
Kázmér, M., Major, B., Al-Tawalbeh, M., Gaidzik, K. (2024). Destructive Intraplate Earthquakes in Arabia—The Archaeoseismological Evidence
. In: Abd el-aal, A.ea.K., Al-Enezi, A., Karam, Q.E. (eds) Environmental Hazards in the Arabian Gulf Region. Advances in Natural
and Technological Hazards Research, vol 54. Springer, Cham..
Littmann, E. et. al. (1913) Greek and Latin Inscriptions in Syria Section A Part 3 Umm idj-Djimal, Brill, Leiden
Osinga E.A. (2025) Chapter 11. Rewriting the Narrative: Umm al_Jimal and the AD 749 Earthquake
, in Lichtenberger, A. and Raja, R. (2025) Jerash, the Decapolis, and the Earthquake of AD 749,
Brepolis
Butler, Howard Crosby. Ancient Architecture in Syria. Publications of
the Princeton University Archaeological Expedition to Syria, 1904 -
190 5 and 1909 , Division II. Leiden, 1913 . See Sectiun A (Southern
Syria), part 3 : "Umm Idj-Djimal."
Corbett, G. U. S. "Investigations at 'Julianos' Church' at Umm elJimal." Papers of the British School at Rome 2 5 (1957) : 39-65 .
de Vries, Bert. "The Umm el-Jimal Project, 1972-77. " Annual of the
Department of Antiquities of Jordan 2 6 (1982) : 97-116 . Also published
in Bulletin of the American Schoots of Oriental Research, no. 24 4 (1981) :
53-72 .
de Vries, Bert. "Umm el-Jimal in the First Three Centuries A.D." In
The Defence of the Roman and Byzantine East, edited by Philip Freeman and David L. Kennedy, pp. 227-241 . British Archaeological
Reports, International Series, no. 297 . Oxford, 1986 .
de Vries, Bert. "The Umm el-Jimal Project, 1981-1992. " Annual of the
Department of Antiquities of Jordan 3 7 (1993) : 433-460 .
de Vries, Bert. "What's in a Name? The Anonymity of Ancient Umm
el-Jimal." Biblical Archaeologist 5 7 (1994) : 215-219 .
de Vries, Bert. Umm el-Jimal: A Roman, Byzantine, and Early Islamic
Town in Northern Jordan. Ann Arbor, 1995 .
de Vries, Bert. "The Umm el-Jimal Project, 199 3 and 199 4 Field Seasons." Annual of the Department of Antiquities of Jordan 3 9 (1995) .
Glueck, Nelson. Explorations in Eastern Palestine. Vol. 4 . Annual of the
American Schools of Oriental Research, 25 . New Haven, 1951 . See
"Eastern Syria and die Southern Hauran" (part 1 , pp. 1-34) .
Horsfield, George. "Umm el-Jamal." Antiquity 11 (1937) : 456-460 , pis.
1-4 .
Kennedy, David L., and Derrick N. Riley. Archaeological Explorations
on the Roman Frontier in North-East Jordan. British Archaeological
Reports, International Series, no. 134 . Oxford, 1982 .
Littmann, Enno, et al. "Greek and Latin Inscriptions." In Syria: Publications of the Princeton University Archaeological Expedition to Syria,
Division III, Section A, Part 3 , Umm Idj-Djimdl, pp. 131-223 . Leiden, 1913 .
Littmann, Enno. "Nabatean Inscriptions." In Syria: Publications of the
Princeton University Archaeological Expedition to Syria, Division IV,
Section A, Umm Idj-Djimdl, pp. 34-56 . Leiden, 1914 .
Littmann, Enno. "Safaitic Inscription." In Syria: Publications of the
Princeton University Archaeological Expedition to Syria, Division IV,
Section C, Part 3 , Umm Idj-Djimal, pp. 278-281 . Leiden, 1943 .
Littmann, Enno. "Arabic Inscriptions." In Syria: Publications of the
Princeton University Archaeological Expedition to Syria, Division IV,
Section D, Umm Idj-Djimal, pp. 1-3 . Leiden, 1949 .
MacAdam, Henry I. Studies in the History of the Roman Province of
Arabia: The Northern Sector. British Arch
B. de Vries, Umm el-Jimal: A Frontier Town and its Landscape in Northern Jordan,
1: Fieldwork 1972–1981 (JRA Suppl Series 26), Portsmouth, RI 1998
ibid. (Reviews) Antiquite Tardive 7
(1999), 431–436. — BASOR 333 (2004), 91–92.
B. De Vries, ABD, 6, New York 1992, 725–728
id., ACOR Newsletter 4/2 (1992), 10
5/2 (1993),
13
6/2 (1994), 10
id., ACOR: The First 25 Years, Amman 1993, 73–74
id., ADAJ 37 (1993), 433–460
39
(1995), 421–436
id., AJA 98 (1994), 552–553
99 (1995), 526–528
id., ASOR Newsletter 44/2 (1994), n.p.;
47/2 (1997), 27
id., BA 57 (1994), 171, 215–219
id., Mediterranean Archaeology 13 (2000), 39–45
E. C.
Lapp, ADAJ 39 (1995), 437–445
A. Momani & M. Horstmanshof, ibid., 469–476
S. T. Parker, SHAJ 5
(1995), 251–260
N. I. Khairy, The Archaeology of Jordan and Beyond, Winona Lake, IN 2000, 255–265
A.
Sartre-Fauriat, Des tombeaux et des morts (Bibliothèque archéologique et historique 158), 1–2, Beirut 2001;
F. Villeneuve, Syria 78 (2001), 209–218
D. L. Kennedy & R. Bewley, Antike Welt 34 (2003), 253–263
C.
J. Lenzen, Mediterranean Archaeology 16 (2003), 73–87
