Open this page in a new tab

Lod/Ramla

A rare 1698 view of Ramla by Dutch artist Cornelius de Bruijin. Depicts the city as well as the nearby caravan staging grounds. Arab horsemen and tent camps decorate the foreground. This view was most likely rendered in secret during de Bruijin’s second world tour. The Holy Land was then under the control of the Ottoman Empire who imposed strict limitations on pilgrims and tourist from Europe. It is highly unlikely that de Bruijin would have been allowed to make sketches of the region openly.

Click on image to open a higher resolution magnifiable image in a new tab

Wikipedia and Geographicus Rare Antique Maps - Public Domain


Names
Name Tables

Lod
Transliterated Name Source Name
Lod Hebrew לוד
al-Lidd Arabic اللد
Lydda Latin
Colonia Lucia Septimia Severa Diospolis Latin
Lydda Ancient Greek Λύδδα
Diospolis Ancient Greek Διόσπολις
Georgiopolis Late Byzantine and crusader sources
Ramla
Transliterated Name Source Name
ar-Ramla Arabic الرملة
Ramla Hebrew רַמְלָה
Ramle variant spelling
Ramlah variant spelling
Remle variant spelling
Rama variant historical spelling
Arimathea Crusader - according to wikipedia
Mazliah
Transliterated Name Language Name
Mazliah
Ramla (South)

Introduction
Introduction

Lod, ~15 km. southeast of Tel Aviv, has a long history of occupation. It is mentioned in the list of Canaanite towns conquered by Thutmose III in the fifteenth century BCE and in the Hebrew Bible, the New Testament, and the Quran (Jacob Kaplan in Stern et al, 1993). After the Muslim conquest in 636 CE, Lod (then named Lydda) became the capital of Jund Filistin. In 715/716 CE, the capital was moved to the newly formed city of Ramla ~3 km. away. Historically, Ramla has suffered frequent earthquake damage and appears to be susceptible to liquefaction. By extension, Lod should also be susceptible to liquefaction as both locations rest on soft unconsolidated sediments in a flat coastal plain which in times past likely had a relatively shallow water table.

Lod

Identification and History

The ancient mound of Lod is situated near the southern bank of Nahal Ayalon (Wadi el-Kabir) about 15 km (1 mi.) southeast of Tel-Aviv. It is completely covered by modern buildings, except on the northern side, where the edge of the mound was swept away, thus forming a section 2.5 m deep. Lod is first mentioned in the list of Canaanite towns conquered by Thutmose III in the fifteenth century BCE. It appears later only in the genealogical list of the tribe of Benjamin in connection with the wanderings of the Elpaal family and their settlement in the northern Shephelah (I Chr. 8: 12). B. Mazar accordingly considers that the town lay in ruins during most of the Late Bronze and Iron ages and was resettled only in the time of Josiah. Lod is also mentioned in the context of the return of the people from the Babylonian Exile (Ezra 2:33; Neh. 7:37, 11:35). The town is frequently mentioned in the Hellenistic and Roman periods. Under the Emperor Septimius Severus, it was granted the status of a city and received the name of Diospolis. After the Arab conquest, its earlier name was restored.

Excavations in 1951 and 1952

From December 1951 to January 1952, J. Kaplan conducted exploratory excavations at the site on behalf of the Israel Department of Antiquities and Museums. Three small areas were examined:

  • area A - the northern edge of the mound
  • area B - the two sides of a small ravine
  • area C - a level area north of the above-mentioned ravine
In area A, a trench (10 by 2.5 m) was dug running from the base of the mound toward its upper part. Here, below surface level, part of a circular structure built of rubble was exposed. Beneath the structure, a mud-brick wall had been built on the virgin white sandy soil. These two lower strata were found to be identical with the lowest strata of the mound visible in the section. Altogether, four phases of occupation could be distinguished in the section, all dating to the Early Bronze Age I.

In area B, on the two banks of the small ravine, a dump of gray earth was discovered with pottery from different periods, mainly from the Chalcolithic cultures in Israel: Wadi Rabah, stratum VIII at Jericho, and Ghassulian ware. The pottery of the first two types included sherds of low-neck jars, splay-ended loop handles, and black-burnished ware. Among the Ghassulian sherds were loop handles with triangular section, goblets, and churns.

In area C shallow cavities were found-the remains of pits dug into the white sand-that contained Neolithic pottery. Most of the pottery was characteristic of Jericho IX ware - simple and coarse ware made with a large quantity of straw, plain burnished ware, and decorated pottery with a red-painted chevron pattern, and typical Jericho IX handles, including rough loop handles, cylindrical knob handles, and triangular ledge handles.

Tel Lod

Introduction

Numerous salvage excavations were conducted on Tel Lod during the 1990s. The stratigraphy of the mound differs from area to area, but it appears that, except for a few short gaps, it was occupied from the beginning of the Pottery Neolithic period, through the Bronze and Iron Ages, and intermittently in later periods to the present. The site is located at a distance from major trade routes and was never fortified. The earliest settlement appears to have been situated at the northern part of the mound, alongside the streambed. During the Middle Bronze, Late Bronze, and Iron Ages, the settlement moved about half a kilometer to the south. In the Roman and Byzantine periods, the mound was largely abandoned and settlement concentrated to its south, in the area of today’s Old City of Lod.

Excavations at Tel Lod were conducted in 1995 on behalf of Tel Aviv University by H. Khalaily and A. Gopher, and later on behalf of the Israel Antiquities Authority: in 1996 by E. Yannai and R. Badich, in 1997 by E. van den Brink, and most extensively in 2000 by E. Yannai and O. Marder

Ramla

Identification

According to scholars, the name Ramla derives from the Arabic word raml, meaning "sand," probably referring to the sand dunes on which the city was built, about 4 km (2.5 mi.) south of Lod and 15 km (9 mi.) southeast of Tel Aviv (map reference 138.148). Ramla was founded in the early eighth century (712-715 CE) by the Umayyad caliph Suleiman ibn 'Abdel-Malik (brother of Walid I), the former governor of Jund Filistin (the District of Palestine). It is the only city in Palestine founded by Arabs. Ramla was first made the capital of the newly created province Filistin, which included the regions of Judea and Samaria. According to accounts by Arab geographers, Ramla was built from the ruins of nearby Lod. This destruction was not only expressed in the preferred status granted to Ramla, but also in the reuse in its construction of building materials from the ruins of Lod. To promote its growth, part of the population of Lod was also moved to Ramla.

With the city's founding, many installations and buildings, such as cisterns, a drain channel, the House of Dyers, and the mosque, were erected. Most of the Umayyad city is now covered by later construction. Only in the Umayyad mosque, called the White Mosque (which was later renovated, probably in the Ayyubid period), were several remains of that period preserved. Its minaret, which was rebuilt in the Mameluke period, is the most prominent structure of medieval Ramla.

Excavations at the White Mosque in 1949

Excavations at the White Mosque were conducted by J. Kaplan in 1949 on behalf of the Ministry of Religious Affairs and the Israel Department of Antiquities and Museums. The excavations attempted to ascertain which buildings, both above ground and subterranean, belonged to the original mosque enclosure. It was revealed that the mosque enclosure was built in the form of a quadrangle (93 by 84 m), with its walls oriented to the cardinal points. It included the following structures: the mosque itself; two porticoes along the quadrangle's east and west walls; the north wall; the minaret; an unidentified building in the center of the area; and three subterranean cisterns.

Excavations in 1965

Of the various excavations carried out in different areas of Ramla, the major undertaking was conducted in October 1965 by M. Rosen-Ayalon and A. Eitan, on behalf of the Israel Department of Antiquities and Museums. This excavation was concentrated in the southwestern part of the town; however, several trial soundings on a smaller scale were dug simultaneously in an effort to broaden the general picture.

Excavations between 1990 and 2003

In the wake of development and construction projects, 79 salvage excavations and soundings were conducted in various parts of the city of Ramla in 1990–2003. While most of the excavations were probes at building sites or under modern streets, a number of large-scale excavations were also carried out in areas north and west of the Old City and north and south of the White Mosque. Several excavations were also conducted around the Ramla bypass road northeast of the Old City and in the western suburbs of the modern city. The aqueduct that carried water to the city from the springs at Tel Gezer was also examined in salvage excavations. Although they were conducted in non-contiguous areas, the many excavations make it possible to arrive at a tentative reconstruction of Ramla in the Early Islamic, Mameluke, and Ottoman periods. In addition to the excavations, an architectural survey of the buildings from the Middle Ages and the Ottoman period was conducted by A. D. Petersen in the center of the city.

The Ramla Aqueduct

The Umayyad aqueduct to Ramla is referred to as Qanat Bint el-Kafir (“The Heretic Daughter’s Aqueduct”) on the map of the British Survey of Palestine of 1882; the source of this name is unknown. In 1950, R. Gophna and J. Kaplan mapped a section of the aqueduct at Moshav Ptah ya. In 1998–2001, A. Gorzalczany and Y. Zelinger conducted salvage excavations along its course and exposed large sections of it.

Most of the course of the c. 10-km-long aqueduct can be reconstructed, but its water source and point of entry to Ramla have not yet been ascertained. Its source should probably be identified with the group of springs located in the vicinity of Abu Shusha, near Gezer. From there it runs northwest, entering Ramla from the south or southwest.

The aqueduct consists of a foundation of fieldstones bonded with cement and two parallel walls of dressed limestone masonry. The walls (40–50 cm wide) are plastered on their inner and outer faces and overlaid with another layer of fieldstones mixed with gray cement. The overall width of the aqueduct is about 1.5 m. Its channel is covered with flat limestone slabs averaging 30 by 80 cm and 12–15 cm thick, laid widthwise. The inside of the aqueduct was covered with an approximately 1-cm-thick layer of light red plaster composed of quartz, sherds, and shells applied to a base of sherds. Another layer of plaster was applied above this, somewhat altering the cross-section of the channel (specus), which varies along its length. In the eastern part of the aqueduct its width was distorted by the movement and inward collapse of the supporting walls and this section is at present completely blocked. Soundings made in the middle of the aqueduct revealed that it was dug into the virgin hamra soil. The aqueduct descends to a depth of c. 0.7 m and is set on a slightly wider foundation (1.50 m) made of small stones bonded in gray mortar, reaching a depth of 0.7 m below the base of the channel.

In the middle of the excavated segment of the aqueduct is a cylindrical shaped manhole, 1.30 m in diameter and preserved to a height of 0.50 m above the level of the cover stones. The superstructure is hollow and has a hexagonal internal horizontal cross-section (0.70 m in diameter). The manhole was built above a square opening set between the cover stones and is large enough for a person to enter. A similar manhole was exposed 45 m to the west, but its superstructure had collapsed. No cover stones were found in situ in the westernmost part of the exposed segment, probably having been robbed in antiquity.

Mazliah (Ramla South)

Introduction

Mazliah is also known as Ramla (South). Excavations revealed finds dating back to the Paleolithic however most of the site is dominated by two main stages of occupation; 7-8th centuries CE and 8th-9th centuries CE (Gorzalczany, 2008b:31).

Excavation History

Table 1. Excavations at Ramla (South)
(links not working)

Publication
Area
Permit/License
Institute
Excavator
Survey
A-3784
IAA
O. Shmueli and T. Kanias
 
A–C
A-4144
 
IAA
 
A. Gorzalczany
A, B
Y. Zelinger
Salvage Excavation Reports 5
HA-ESI 121
A
A-4507
B-298/2005
B-306/2006
Tel Aviv University
O. Tal and
I. Taxel
 
B
A-4454, A-4674, A-4725
IAA
A. Onn
C
A-4739
IAA
A. Gorzalczany
A1, B1
A-4910
IAA
A. Gorzalczany
 
C
B-299/2005
Bar Ilan University
R. Avisar and
J. Uziel
E
 
A-5168
IAA
A. Gorzalczany
F
Tel Aviv University
O. Tal and
I. Taxel
G, H
A-5311
IAA
A. Gorzalczany
H, I, J, K
A-5331
IAA
A. Gorzalczany
 
G, H1, K1, P, Q, R, S
 
M, N
B-326/2008
Tel Aviv University
O. Tal, I. Taxel, L. Yehuda and Y. Paz
 
T
A-5473
IAA
A. Gorzalczany

Maps, Aerial Views, Plans, Paintings, Drawings, and Photos
Maps, Aerial Views, Plans, Paintings, Drawings, and Photos

Maps

  • Fig. 1 - Coastal Palestine 644-800 CE from Taxel (2013)
  • Fig. 1 - Location map from Gorzalczany and Spivak (2008)
  • Fig. 2 - Ramla City Limits from Taxel (2013)
  • Fig. 1.4 - Ramla (South) limits from Tal and Taxel (2008)

Aerial Views

  • Annotated Google Satellite View of Lod/Ramla from BibleWalks.com
  • Fig. 6.1 - Aerial view of Ramla showing the location of the site of Ramla (South) from Tal and Taxel (2008)
  • Lod/Ramla in Google Earth
  • Lod/Ramla on govmap.gov.il
  • Fig. 5.3 Aerial View of White Mosque and environs from Petersen and Pringle (2021)
  • General Area of Excavations at Mazliah in Google Earth
  • General Area of Excavations at Mazliah on govmap.gov.il

Plans

Site Plans

Normal Size

  • Fig. 2 - Site Map from Gorzalczany (2009b)
  • Master Excavation Map from Tal and Taxel (2008)
  • Fig. 2 - Map of excavation areas from Gorzalczany and Spivak (2008)
  • Fig. 2 - Plan from Gorzalczany (2008)
  • Fig. 1 - General Plan from Gorzalczany and Ad (2010)
  • Fig. 1.5 - Site map with trial excavation areas from Tal and Taxel (2008)

Magnified

  • Fig. 2 - Site Map from Gorzalczany (2009b)
  • Master Excavation Map from Tal and Taxel (2008)
  • Fig. 2 - Map of excavation areas from Gorzalczany and Spivak (2008)
  • Fig. 2 - Plan from Gorzalczany (2008)
  • Fig. 1 - General Plan from Gorzalczany and Ad (2010)
  • Fig. 1.5 - Site map with trial excavation areas from Tal and Taxel (2008)

Area Plans

White Mosque and Area B-3

Normal Size

  • Fig. 5.4 Plan of Area B-3 and White Mosque from Petersen and Pringle (2021)
  • Fig. 1 Plan of White Mosque of Ramla from Rosen-Ayalon (2006)
  • Fig. 2 Plan of White Mosque, showing reconstruction of northern exedra (first building phase) from Rosen-Ayalon (2006)
  • Fig. 3 Plan of White Mosque, showing reconstruction of northern exedra and northern boundary wall (first building phase) from Rosen-Ayalon (2006)
  • Fig. 6 Reconstruction of original plan of White Mosque from Rosen-Ayalon (2006)
  • Fig. 11 Abbasid cistern superimposed over pools in White Mosque enclosure from Rosen-Ayalon (2006)

Magnified

  • Fig. 5.4 Plan of Area B-3 and White Mosque from Petersen and Pringle (2021)
  • Fig. 1 Plan of White Mosque of Ramla from Rosen-Ayalon (2006)
  • Fig. 2 Plan of White Mosque, showing reconstruction of northern exedra (first building phase) from Rosen-Ayalon (2006)
  • Fig. 3 Plan of White Mosque, showing reconstruction of northern exedra and northern boundary wall (first building phase) from Rosen-Ayalon (2006)
  • Fig. 6 Reconstruction of original plan of White Mosque from Rosen-Ayalon (2006)
  • Fig. 11 Abbasid cistern superimposed over pools in White Mosque enclosure from Rosen-Ayalon (2006)

Area A

Normal Size

  • Plan 1 - eastern squares of Area A from Kletter (2005)

Magnified

  • Plan 1 - eastern squares of Area A from Kletter (2005)

Squares P-T/10-12

Normal Size

  • Fig. 1.6a - General site of the 2007 season (Squares P-T/10-12) from Tal and Taxel (2008)

Magnified

  • Fig. 1.6a - General site of the 2007 season (Squares P-T/10-12) from Tal and Taxel (2008)

Squares U-Y/10-12

Normal Size

  • Fig. 1.6b - General site plan of the 2007 season (Squares U-Y/10-12) from Tal and Taxel (2008)

Magnified

  • Fig. 1.6b - General site plan of the 2007 season (Squares U-Y/10-12) from Tal and Taxel (2008)

Middle Bronze Age Loci

Normal Size

  • Fig. 2.1 - Plan of the Middle Bronze Age loci from Tal and Taxel (2008)

Magnified

  • Fig. 2.1 - Plan of the Middle Bronze Age loci from Tal and Taxel (2008)

Podium

Normal Size

  • Fig. 4.1a - Plan of the podium from Tal and Taxel (2008)

Magnified

  • Fig. 4.1a - Plan of the podium from Tal and Taxel (2008)

Plastered Pool

Normal Size

  • Fig. 4.3a - Plan of the plastered pool from Tal and Taxel (2008)

Magnified

  • Fig. 4.3a - Plan of the plastered pool from Tal and Taxel (2008)

Domestic complex

Normal Size

  • Fig. 5.1 - Plan of the domestic complex from Tal and Taxel (2008)

Magnified

  • Fig. 5.1 - Plan of the domestic complex from Tal and Taxel (2008)

Oil press

Normal Size

  • Fig. 5.9 - Plan of the oil press from Tal and Taxel (2008)

Magnified

  • Fig. 5.9 - Plan of the oil press from Tal and Taxel (2008)

Wine press

Normal Size

  • Fig. 5.17 - Plan of the Northern wine press from Tal and Taxel (2008)
  • Fig. 5.18 - Plan of the western wine press from Tal and Taxel (2008)

Magnified

  • Fig. 5.17 - Plan of the Northern wine press from Tal and Taxel (2008)
  • Fig. 5.18 - Plan of the western wine press from Tal and Taxel (2008)

Pottery kilns

Normal Size

  • Fig. 5.24 - Plan of the pottery kilns from Tal and Taxel (2008)

Magnified

  • Fig. 5.24 - Plan of the pottery kilns from Tal and Taxel (2008)

Early Islamic remains

Normal Size

  • Fig. 6.2 - Schematic site plan of the Early Islamic remains discovered during the excavations from Tal and Taxel (2008)

Magnified

  • Fig. 6.2 - Schematic site plan of the Early Islamic remains discovered during the excavations from Tal and Taxel (2008)

Cisterns

Normal Size

  • Fig. 6.3a - Plan of Cistern 1590 from Tal and Taxel (2008)
  • Fig. 6.5a - Plan of Cistern 1356 from Tal and Taxel (2008)
  • Fig. 6.8a - Plan of Cisterns 1572 and 1964 from Tal and Taxel (2008)

Magnified

  • Fig. 6.3a - Plan of Cistern 1590 from Tal and Taxel (2008)
  • Fig. 6.5a - Plan of Cistern 1356 from Tal and Taxel (2008)
  • Fig. 6.8a - Plan of Cisterns 1572 and 1964 from Tal and Taxel (2008)

Western pipe system

Normal Size

  • Fig. 6.15b - Plan of the western pipe system from Tal and Taxel (2008)

Magnified

  • Fig. 6.15b - Plan of the western pipe system from Tal and Taxel (2008)

Pools

Normal Size

  • Fig. 6.32a - Plan of Pools 1655 a-d from Tal and Taxel (2008)
  • Fig. 6.33a - Plan of Pools 11575 a-d from Tal and Taxel (2008)

Magnified

  • Fig. 6.32a - Plan of Pools 1655 a-d from Tal and Taxel (2008)
  • Fig. 6.33a - Plan of Pools 11575 a-d from Tal and Taxel (2008)

Paintings, Drawings, and Archival Photos

  • Drawing of Ramla from 1487 by Conrad Grünenberg from wikipedia and Digital Badische Landes-Bibliothek
  • Painting of Ramla from 1698 by Cornelis de Bruijn from wikipedia and Geographicus Rare Antique Maps
  • Photo of Ramla from before 1885 by Félix Bonfils from wikipedia
  • Photo of Ramla from 1895 from wikipedia and the Detroit Publishing Co. Collection at the U.S. Library of Congress

Photos of Archaeoseismic Evidence

  • Fig. 6 - Smashed Jars from Gorzalczany and Salamon (2018)
  • Fig. 9 - Smashed Jars from Gorzalczany (2009b)
  • Fig. 10 - Faulted strata from Gorzalczany (2009b)
  • Fig. 3 - Faulted Strata from Gorzalczany and Salamon (2018)
  • Fig. 4 - Sunken Floor and Column base from Gorzalczany and Salamon (2018)
  • Fig. 5 - Sunken Strata at the antilia type water well from Gorzalczany and Salamon (2018)
  • Fig. 2 - Collapsed Wall with aligned courses from Gorzalczany and Salamon (2018)
  • Fig. 6 - Tilted Wall from Kletter (2005)

Textual Chronology
11th century CE Palestine Quakes - 6 December 1033 CE

Discussion

Discussion

Archaeoseismic Chronology
Stratigraphy

Areas J2 and K1

Stratum Period Age Comments
0 Modern Remains of a military installation
I 11th cent. CE
II Fatimid 9th-10th cent. CE
IIIa Abbasid 8th-9th cent. CE Industrial installations
IIIb Byzantine/Umayyad 7th-8th cent. CE Industrial installations
IV Byzantine 4th-5th cent. CE Pottery kilns
V Roman 1st cent. BCE - 4th cent. CE
VI Persian/Hellenistic 4th-5th cent. BCE Potsherds only
VI Persian/Hellenistic 4th-5th cent. BCE Potsherds only
VII Late Bronze 15th-13th cent. BCE Potsherds only
VIII Middle Bronze 20th-15th cent. BCE Potsherds only
IX Prehistoric Area A

White Mosque at Ramla

Phase Features Period Comments
1 Eastern wing, including part of covered prayer hall; exedra; entrance gate; mihrab?; minaret? Umayyad (first half of eighth century) According to multiple textual sources, the White Mosque at Ramla was first built in the second decade of the 8th century CE (Rosen-Ayalon, 2006)
2 Extension of eastern wall; northern wall; subterranean pools Abbasid (second half of eighth century)
3 Renovation of prayer hall; possibly western wing Ayyubid (twelfth century)
4 Minaret Mamluk (fourteenth century)

Antila Well Earthquake - 8th century CE

Discussion

Discussion

References
Notes by JW

Areas J2 and K1

Plans and Photos

Plans and Photos

  • Fig. 2 - Site Map from Gorzalczany (2009b)
  • Fig. 6 - Smashed Jars from Gorzalczany and Salamon (2018)
  • Fig. 9 - Smashed Jars from Gorzalczany (2009b)
  • Fig. 10 - Faulted strata from Gorzalczany (2009b)
  • Fig. 3 - Faulted Strata from Gorzalczany and Salamon (2018)
  • Fig. 4 - Sunken Floor and Column base from Gorzalczany and Salamon (2018)
  • Fig. 5 - Sunken Strata at the antilia type water well from Gorzalczany and Salamon (2018)
  • Fig. 2 - Collapsed Wall with aligned courses from Gorzalczany and Salamon (2018)

Discussion

Gorzalczany (2009b) described 8th century CE earthquake evidence as follows:
Evidence of a major earthquake was discerned in Areas J2 and K1 (see Fig. 2 - site map); it included cracks along the walls of installations, large sections of collapse composed of neat ashlar stone construction that had not been robbed, floors that had dropped and walls that curved in unexpected directions. Wall collapse, which had been intentionally covered over with soil and hamra to save the building stones from being plundered, was observed. It seems that the residents of the town were concerned with the quick restoration of the settlement’s activity. Especially interesting was a series of jars, some positioned upside down, which were discovered in situ, smashed inside a room that was apparently used for storage [Fig. 6 ]. The jars dated to the first half of the eighth century CE and they seem to have been all damaged simultaneously in the same event. The room was leveled and quickly refurbished in an attempt to regain its capacity for industrial manufacture as soon as possible. The renovation of the room included the construction of new walls, with which jars dating to the second half of the eighth century CE were associated and preserved intact (Fig. 9 ). It therefore seems that we have here a small, rare chronological window, which enables us to date the earthquake.

Indisputable proof of the earthquake occurrence was found in the balks of Area K1, where a fault in the layers of sand and hamra, which were split due to a fissure, stands out prominently (Fig. 10 ). One side of the layers in the section was lower than the other side. The fissure continued along several excavation squares and it caused a plaster floor and a column base that stood above it to sink 1.5 m [Fig. 4 ]. Such vertical movement of layers could only be caused by a powerful seismic event. An opposite fracture was discerned elsewhere on the site, where the movement was not only vertical but also horizontal, causing the layers to climb one atop the other [Fig. 5 ]. It appears then that archaeological evidence of an earthquake, which occurred close to Ramla in the middle of the eighth century CE, can be pointed to for the first time. The dating is firmly based on the pottery and it is feasible that this is the famous earthquake of the year 749 CE.
Thus, we have earthquake evidence which is precisely dated and well described. The 1.5 meter sinking of the column base (Fig. 4 ) strongly suggests that this site experienced liquefaction. In fact, Gorzalczany and Salamon (2018) report that the column base and associated plaster floor which collectively sank 1.5 m [Fig. 4] were underlain by neatly superimposed layers of sand and hamra which constituted an artificial fill. Gorzalczany and Salamon (2018) found evidence that this artificial fill was placed in a foundation trench which was dug to set up an antilia type water well (Avitsur 1976: 60-63; Ayalon 2000) which abutted the plaster floor and columns. The presence of an antilia type water well indicates a shallow water table and a shallow water table, uncompacted fill, and alternating layers of strata with differing permeabilities is a veritable recipe for liquefaction during seismic events. Liquefaction, which is driven by temporal increases in pore pressure that cannot dissipate can be enhanced if pore pressures in the more permeable sandy layers cannot dissipate because they are surrounded and sealed by less permeable layers. Gorzalczany and Salamon (2018) report that the entire antilia installation - the pit and the lifting superstructure device together with the layers of fill and the occupation layer abutting them - collapsed and sank several meters. Damage to surrounding areas indicates that the pit (Fig. 5) constituted the central axis of the fall and the sand layers around the antilia [that appeared] broken in a stepped formation (Fig. 5) encompassed the pit.

Gorzalczany and Salamon (2018) added an observation of building stones of walls that had collapsed in a clear, `orderly' pattern found in situ (Fig. 2 ). Such an orderly fall pattern can be a diagnostic effect of failure due to an earthquake. Gorzalczany and Salamon (2018) report that no fault traces were found underneath the affected areas and no faults were indicated on geologic maps suggesting that the observed archeoseismic damage was due to shaking away from the epicenter of the causitive earthquake.

The White Mosque at Ramla

Rosen-Ayalon (2006:72) suggested that renovations to the White Mosque at Ramla in the second building phase was a reaction to seismic damage to the first phase from a mid 8th century CE earthquake - noting that although not all the excavators discovered signs of destruction compatible with an earthquake, some indeed relate to this possibility. Rosen-Ayalon (2006:72) described the physical archaeoseismic evidence as inconclusive.

The evidence is inconclusive, since a significant proportion of the finds was found in disturbed stratigraphy. In other words, even if there had been significant damage, this may not have been evident in excavation. However, even minimal disturbance — not of the magnitude caused by the eleventh-century earthquake — may have been sufficient to warrant the renovations.
By comparing architectural elements (e.g. pointed arches) of the 3 subterranean cisterns of the Phase 2 mosque enclosure with architectural elements (e.g. pointed arches) of a subterranean cistern known as 'the pools of Saint Helena' or the 'Aneziya', Rosen-Ayalon (2006:74) concluded that Phase 2 mosque construction took place around 788/789 CE as construction of 'the pools of Saint Helena' is dated by inscription to A.H. 172 (788/789 CE).

Rosen-Ayalon (2006)

Introduction

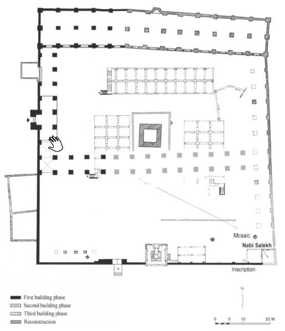
Little is known of the history of the White Mosque of Ramla, the impressive remains of which dominate the environs, and its origins have not been studied systematically so far. All historical sources agree that the mosque was built at the very beginning of the foundation of Ramla, in the second decade of the eighth century CE, during the Umayyad Dynasty (660–750 CE). The city of Ramla was founded by ʿAbd al-Malik’s son, Suleiman, the ruler of Palestine, who established it as the capital of the province (EI, s.v. Ramlah). The first archaeological excavation of the site, directed by J. Kaplan, was conducted in 1949; its publication (Kaplan 1957) included a plan of the mosque (fig. 1), which still reflects our present state of knowledge, 50 years later.

The mosque contains the following components (fig. 1):

  • The large quadrangular enclosure contains an open-air courtyard and a long and narrow covered area in the south; the long wall, the qibla, that faces Mecca, with the mihrab—the niche emphasising this orientation—in its centre. The minaret is situated in the north.

  • Three subterranean cisterns are situated in the open courtyard.

These components are analysed below, in an effort to unravel the complex history of the site.

The excavator distinguished three building phases, shown on the plan. The first includes the eastern and part of the southern area of the enclosure, as well as the northern wall. As noted by Kaplan (1957: 98), excavation trenches dug at a number of points indicate that these walls rest on the virgin soil of Ramla (the name ‘Ramla’ is derived from the Arabic word raml, meaning ‘sand’).

According to the plan, the western part of the enclosure was constructed in the second building phase, its walls characterised by less solid foundations than those of the preceding stage (Kaplan 1957: 98). The second phase is emphasised by a 6° deviation in the orientation of the qibla and the covered prayer hall.

The construction of the minaret was attributed by Kaplan to the third building phase.

The First Phase

The covered prayer hall of the mosque reflects a plan characteristic of Umayyad mosques throughout Syro-Palestine and known, with minor distinctions, from various sites in the region. It consists of a long, narrow area, perhaps designed to enable a large number of congregators to assemble next to the prestigious qibla wall. The Great Mosque of Damascus (Creswell and Allan 1989: 49) and the early plan of al-Aqsa Mosque, Jerusalem (Grafman and Rosen-Ayalon 1996: fig. 3), are the most prominent examples of this plan and may have served as the inspiration for the mosque of the new capital. The construction of the western part of the mosque in the second building phase evidently maintained this original plan (see below).

The eastern wall of the enclosure clearly belongs to the first building phase, as it continues the straight line of the covered prayer hall. Beyond the wall of the enclosure lies a covered exedra, an element that occurs in most mosques and was probably intended to provide protection from the elements. A row of pillar or column bases surrounding the courtyard runs parallel to the eastern wall of the mosque’s enclosure.

Two additional rows of pillar bases in this enclosure, oriented to the west (fig. 1), are attributed by Kaplan to the first phase as well. This is clearly not coincidental, since the pillars in each row and between the rows are equidistant. These two rows probably continued along the entire length of the northern line of the enclosure until its juncture with the western wall (fig. 2).1 Evidently, then, the northern exedra—which consisted of a double row of pillars—served as the boundary of the mosque enclosure in the first phase. This does not present any problem, since we are familiar with exedras with more than one row of pillars in many other mosques, such as the ancient mosque of Susa, Iran (Creswell and Allan 1989: fig. 135) and Raqqa, Syria (Creswell and Allan 1989: fig. 145), with two rows, and the later mosques of Qairawan, Tunisia (Creswell and Allan 1989: fig. 200) and Samarra, Iraq (Creswell and Allan 1989: fig. 232), with even more rows in their exedras. We may conclude, therefore, that if this is indeed the northern exedra of the mosque under discussion, the entire enclosure should be circumscribed by a northern wall. In order to determine the full size of the mosque in the first phase of construction, we postulate that the northern wall was located at the same distance from the northern pillar rows as the eastern wall from the eastern row of pillars (fig. 3). This suggests that the mosque was rectangular in shape, and not square, as in Kaplan’s plan. Confirmation for this proposal comes from other rectangular Umayyad mosques in the Syro-Palestinian region, most notably the Great Mosque of Damascus (Creswell and Allan 1989: 49) and al-Aqsa Mosque, Jerusalem (Grafman and Rosen-Ayalon 1996: fig. 3). Thus, the proportions of the White Mosque, as conjectured here, appear to be similar to those of other contemporaneous mosques in the region.

Another feature, the entrance to the mosque, offers conclusive support for this proposal. Although the present-day entrance is located in the north, next to the minaret, the original main entrance—now completely covered—was uncovered by Kaplan in the original eastern wall and is indicated on his plan; it too is attributed to the first building phase. There are four pillar bases to the south of this entrance, but only three such bases to its north. If a northern wall once circumscribed the entire enclosure, the doorway would have been positioned precisely at the centre of the eastern wall, in accordance with the common architectural formula for such mosques.

It is thus likely that the original plan of the mosque conformed to this reconstruction. As implied by Kaplan, these boundaries were later blurred, although he does not elaborate on the subsequent building phases. It is proposed here that this modification resulted from one of the major earthquakes that shook the region toward the end of the Umayyad period, an event that likely destroyed both the covered hall and the northern part of the mosque.

The Second Phase

As can be seen on the plan, both the western part of the covered hall and the western wall of the enclosure do not belong to the first phase. The entire western part, beyond the first four pillar bases, belongs to the second phase, which apparently was an attempt to reconstruct or renovate the mosque after it had been hit by the earthquake of 747 CE.2 Although not all the excavators discovered signs of destruction compatible with an earthquake, some indeed relate to this possibility. The evidence is inconclusive, since a significant proportion of the finds was found in disturbed stratigraphy. In other words, even if there had been significant damage, this may not have been evident in excavation. However, even minimal disturbance—not of the magnitude caused by the eleventh-century earthquake—may have been sufficient to warrant the renovations (see below).

To the best of our knowledge, the facade of the present-day covered hall and the nature of the construction reflect a later phase of renovation (fig. 4). This phase, which should be attributed to Salah al-Din in 1190, is mentioned in the historical sources by Mujir al-Din (1866), the well-known fifteenth-century historian. Kaplan notes that the renovation was hindered by the many burials in the environs, which made the building of the qibla—and the entire covered hall— problematic. According to Kaplan, some time probably elapsed from the time of the destruction until the reconstruction. Noteworthy is an excerpt from Ibn Batuta, from the mid-fourteenth century (1355), which relates a tradition that attributes to the area of the qibla—our southern wall—a burial of 300 saints (Ibn Batuta 1355: 128). Although a discussion of this tradition, the veracity of which is disputable, is beyond the scope of this article, it supports the architectural development proposed here, i.e. the deviation in the orientation of the qibla, due to the disturbance.

One still needs to account for the interim period between the earthquake, which occurred in the middle of the eighth century, and the renovations to which we now refer, which took place during the twelfth century. Indeed, there is evidence pointing to the important status of the mosque prior to 1190. Let us recall that not one, but two, earthquakes occurred in the interim and may both have destroyed the mosque: the first, as already discussed, took place in the eighth century, and another, devastating one occurred in 1033. This is evident from the writings of the traveller Nasir-i Khusrau, who visited Palestine one decade after the earthquake and grieved for the city of Ramla which was devastated in the early eleventh-century earthquake (1881: 21). It is highly probable that the western part of the mosque was then destroyed again. Thus, from an historical-chronological perspective, the period that elapsed should be calculated from the earthquake of 1033, in the Fatimid period, to Salah al-Din’s restoration of the mosque in 1190.

To reiterate, according to the sources, the present-day mosque reflects the Ayyubid renovations. This would include the simple mihrab which appears on the plan. However, al-Muqadassi, in his description of the mosque, elaborates on the mihrab, noting that the mosque surpasses all others in beauty, including the Damascus mosque and the al-Aqsa Mosque. To quote al-Muqadassi: “the main mosque of Ramla is called al-Abi‘ad—the White Mosque; it is more beautiful and luxurious than that of Damascus.” According to al-Muqadassi, it possesses the most luxurious mihrab, and “its minbar is second in beauty only to that of Jerusalem” (al-Muqadassi, p. 164). Al-Muqadassi, who lived in the second half of the tenth century CE in Palestine, is generally considered a reliable source.

From these descriptions we may deduce that the simple mihrab in the present-day mosque (fig. 5) is not the same one that earned al-Muqadassi’s praise and that, consequently, there must have been an earlier mihrab, belonging either to the first Umayyad phase or to the second phase of the mosque. This elaborate mihrab was presumably destroyed in the 1033 earthquake, and the present-day mihrab is probably the one renovated in Salah al-Din’s time. If this is the case, it suggests a third—hitherto unsuspected—period in the history of the mosque
.

The original plan of the mosque may now be reconstructed in full (fig. 6). The 6° deviation in the orientation of the covered southern hall— presumably destroyed by the earthquakes—should be cancelled. We suggest that the renovation of the mosque included the elongation of the eastern boundary wall to its present dimensions and the construction of a northern wall, encompassing the mosque as we know it today.

The historical events led to the following developments: the city, first threatened by the Carmatians, was conquered by the Crusaders. In 1187, following the Battle of Hittin, Salah al-Din freed Ramla from the Crusaders, leading him to renovate the mosque, as mentioned above. The present-day façade of the prayer hall is a remnant of those renovations. Two further stages took place in the Mamluk period, with the construction of the minaret (see below).

The subterranean cisterns in the mosque enclosure present a real archaeological enigma. In order to describe this enigma, we will digress briefly and describe another structure, also in Ramla: the outstanding subterranean cistern known as “the pools of Saint Helena” or the Aneziya, which lies to the north of the mosque across the main road in Ramla. M. de Vogüé, one of the most prominent researchers of the late nineteenth century, studied and measured this structure, publishing it in the early twentieth century (de Vogüé 1912). In the late 1930s, Creswell published a detailed plan of the cistern (1939: 162; fig. 7). Thus, in contrast to the limited information available regarding the mosque, we possess a wealth of information and a complete plan of this cistern.

As a starting point, it should be noted that this impressive architectural compound was built in one period, with no significant changes or modifications. Moreover, an inscription, visible to this day, dates the construction to 172 AH (789 CE), the time of Harun al-Rashid (Van Berchem 1897; fig. 8). This functional architectural structure was constructed as a system of subterranean pools, a project initiated by the administration to ensure a regular water supply to the public.

It is an irregular rectangular structure, divided into squares with cross-shaped pillars, from which arches spread out (fig. 9). This is one of the few structures in the country that can be attributed with certainty to the Abbasid period, a period somewhat limited in construction initiatives in this country. In addition to the good state of preservation of the pools, they are of architectural significance: this is the first case in which the pointed arch was used systematically. Throughout the Umayyad period, preceding the Abbasid, the classical arch, with a 180° curve, was used in Muslim architecture and only sporadic use was made of the pointed arch. The Ramla cistern, constructed in the eighth century CE, exhibits the first systematic use of the pointed arch. According to de Vogüé, the Ramla cistern precedes European architecture by four centuries in the use of pointed arches, which can be seen in the hall and the galleries. This is therefore a landmark in the history of architecture in general, and in the history of Ramla in particular.

The enigma presented by the pools within the mosque enclosure is rooted in their resemblance to the cistern described above. The three pools in the mosque enclosure resemble the others in their division of the space by means of monumental cross-shaped pillars extending in arches in the four directions. In this case too, there is a systematic use of the pointed arch. Indeed, the structure is reminiscent of a cathedral (fig. 10). The walls are lined in an identical plaster to the staircases, which descend at a 90° angle to the entrance.3

As previously mentioned, the large pools are dated to 789 CE, a landmark in the history of architecture. Given the similarities between these pools and those within the mosque enclosure, the question arises as to the date of the latter
. Since they are situated inside the Umayyad mosque, are they of Umayyad date too? If so, they would have been earlier than the large pools, and an earlier date than the commonly accepted date of 789 should be postulated for the architectural feature of pointed arches. Alternatively, perhaps the three pools within the mosque are Abbasid, like the large pools to which they bear an architectural resemblance. In this case they would have been built in the mosque at a later date than that of the mosque’s construction.4

In an effort to resolve this enigma, I superimposed the Abbasid cistern over the group of pools in the mosque enclosure. To my surprise, I found an exact correlation between them all (fig. 11). Evidently, both groups reflect an identical architectural plan.

Returning to the mosque, the pools in the compound indeed belong to an early period, but were presumably constructed after the eighth-century earthquake. Even if the destruction was not complete, this would have been an opportunity, with the first renovation of the mosque—that first hitherto unidentified phase. Moreover, their construction took place around the same time as the construction of the Harun al-Rashid pools. In other words, the entire first renovation of the mosque, including its subterranean cisterns, would have taken place after 747, contemporaneously with the Abbasid cistern. This resolves both the question of the date of the cisterns and the question of the pointed arches. The introduction of the three pools in the Umayyad mosque shortly after this period, under the Abbasids, would account for the new northern wall. The first one was removed for the construction of the three reservoirs. The new wall was described by Kaplan as belonging to the first stage—since he was unaware of an earlier stage and his evidence corroborated the criteria of early architecture. This is presumably the same stage at which the beautiful mihrab—whether Umayyad or Abbasid— was incorporated in the mosque. It is likely that this mihrab was the one destroyed in the 1033 earthquake, after which the simpler mihrab from the time of Salah al-Din was installed.

The last architectural element is the minaret, which, as noted by Kaplan, is built in the northern wall of the enclosure, attributed to the third phase of construction. Kaplan mentions that he did not uncover any earlier remains under the minaret in his archaeological investigations. Ben-Dov, who conducted a test pit there, also dated the minaret to the Mamluk period (1984).

An inscription at the entrance to the minaret records the date of its construction—1318, during the time of al-Nasir Muhammad ibn Qala’un. Hence, the minaret is Mamluk, built on the virgin soil of Ramla. This leads to the next query: if this tower is indeed from Mamluk times and was not built atop an earlier tower, where was the ancient tower situated? After all, al-Muqadassi, in the tenth century, mentions the minaret, which he says was built by Hisham, son of ʿAbd al-Malik, the brother of Suleiman, who founded the city of Ramla. This provides conclusive evidence of the existence of a pre-Mamluk minaret. This original minaret may have been built adjacent to the first northern wall, but any conjecture regarding its location is purely speculative.

After the expansion of the area of the mosque enclosure following its destruction by the first earthquake, it is conceivable that the second minaret was situated somewhere along the northern enclosure wall, not necessarily at the same location as the Mamluk one. As for the location of the minaret in Umayyad times, excavations at various sites suggest that the minaret was not restricted to a specific location in the mosque enclosure. Suffice it to mention the mosques of Jerash and Amman in Jordan. It is hoped that future investigations will uncover the original minaret of the White Mosque.

In sum, four phases should be attributed to the White Mosque of Ramla, and not three, as was believed until now. Furthermore, we are now able to attribute to each of these phases historical information hitherto unknown and to correlate different parts of the structure with the various phases (table 1). In addition, the problem of the three cisterns has been solved.

Phase Features Period Comments
1 Eastern wing, including part of covered prayer hall; exedra; entrance gate; mihrab?; minaret? Umayyad (first half of eighth century) According to multiple textual sources, the White Mosque at Ramla was first built in the second decade of the 8th century CE (Rosen-Ayalon, 2006)
2 Extension of eastern wall; northern wall; subterranean pools Abbasid (second half of eighth century)
3 Renovation of prayer hall; possibly western wing Ayyubid (twelfth century)
4 Minaret Mamluk (fourteenth century)
Footnotes

2 For our purposes, it is irrelevant whether the earthquake in which the mosque was damaged occurred in 747 CE or 749 CE, as has been proposed. For discussion of the problem of dating the earthquake, see Tsafrir and Foerster 1997: n. 227. There may even have been two earthquakes. There is no question, however, that at least one earthquake occurred in the mid-eighth century, strong enough to have caused the damage to our mosque.

3 A Mamluk inscription at the entrance to the southern reservoir points to its renovation, probably during one of the Mamluk renovations of the mosque, see L.A. Mayer

4 In Rosen-Ayalon 2002, I touched upon the problematicity of this issue. New light can now be shed on the matter.

3rd Building Phase of the White Mosque at Ramla Earthquake - 11th century CE

Discussion

Discussion

References
Notes by JW

Rosen-Ayalon (2006:72) suggested that renovations to the White Mosque at Ramla in the third building phase occurred after the structure was damaged in the earthquake of 1033 CE. She suggested that third phase construction was carried out in 1190 CE and should be attributed to Salah al-Din. Rosen-Ayalon (2006:72) mentions that traveller Nasir i-Khosero [] visited Palestine one decade after the earthquake [of 1033 CE] and grieved for the city of Ramla which was devastated in the early eleventh-century earthquake. On page 64 in a passage from a French translation of Sefer Nema by Nasir i-Khosero, we can read:

The area of the great mosque is three hundred paces by two hundred. An inscription, placed above the soffèh (bench), relates that on Moharrem 15, 425 ( December 11, 1033), a violent earthquake overthrew a large number of buildings but none of the inhabitants were injured.
It should be noted that textual accounts state that Ramla suffered damage during the earthquake of 1068 CE, was the site of several battles in the 11th century CE including an attack by Turkish elements of the Fatimid Army in 1067 CE, and was the site of a series of battles between Crusaders and Islamic armies starting in 1099 CE.

Rosen-Ayalon (2006)

Introduction

Little is known of the history of the White Mosque of Ramla, the impressive remains of which dominate the environs, and its origins have not been studied systematically so far. All historical sources agree that the mosque was built at the very beginning of the foundation of Ramla, in the second decade of the eighth century CE, during the Umayyad Dynasty (660–750 CE). The city of Ramla was founded by ʿAbd al-Malik’s son, Suleiman, the ruler of Palestine, who established it as the capital of the province (EI, s.v. Ramlah). The first archaeological excavation of the site, directed by J. Kaplan, was conducted in 1949; its publication (Kaplan 1957) included a plan of the mosque (fig. 1), which still reflects our present state of knowledge, 50 years later.

The mosque contains the following components (fig. 1):

  • The large quadrangular enclosure contains an open-air courtyard and a long and narrow covered area in the south; the long wall, the qibla, that faces Mecca, with the mihrab—the niche emphasising this orientation—in its centre. The minaret is situated in the north.

  • Three subterranean cisterns are situated in the open courtyard.

These components are analysed below, in an effort to unravel the complex history of the site.

The excavator distinguished three building phases, shown on the plan. The first includes the eastern and part of the southern area of the enclosure, as well as the northern wall. As noted by Kaplan (1957: 98), excavation trenches dug at a number of points indicate that these walls rest on the virgin soil of Ramla (the name ‘Ramla’ is derived from the Arabic word raml, meaning ‘sand’).

According to the plan, the western part of the enclosure was constructed in the second building phase, its walls characterised by less solid foundations than those of the preceding stage (Kaplan 1957: 98). The second phase is emphasised by a 6° deviation in the orientation of the qibla and the covered prayer hall.

The construction of the minaret was attributed by Kaplan to the third building phase.

The First Phase

The covered prayer hall of the mosque reflects a plan characteristic of Umayyad mosques throughout Syro-Palestine and known, with minor distinctions, from various sites in the region. It consists of a long, narrow area, perhaps designed to enable a large number of congregators to assemble next to the prestigious qibla wall. The Great Mosque of Damascus (Creswell and Allan 1989: 49) and the early plan of al-Aqsa Mosque, Jerusalem (Grafman and Rosen-Ayalon 1996: fig. 3), are the most prominent examples of this plan and may have served as the inspiration for the mosque of the new capital. The construction of the western part of the mosque in the second building phase evidently maintained this original plan (see below).

The eastern wall of the enclosure clearly belongs to the first building phase, as it continues the straight line of the covered prayer hall. Beyond the wall of the enclosure lies a covered exedra, an element that occurs in most mosques and was probably intended to provide protection from the elements. A row of pillar or column bases surrounding the courtyard runs parallel to the eastern wall of the mosque’s enclosure.

Two additional rows of pillar bases in this enclosure, oriented to the west (fig. 1), are attributed by Kaplan to the first phase as well. This is clearly not coincidental, since the pillars in each row and between the rows are equidistant. These two rows probably continued along the entire length of the northern line of the enclosure until its juncture with the western wall (fig. 2).1 Evidently, then, the northern exedra—which consisted of a double row of pillars—served as the boundary of the mosque enclosure in the first phase. This does not present any problem, since we are familiar with exedras with more than one row of pillars in many other mosques, such as the ancient mosque of Susa, Iran (Creswell and Allan 1989: fig. 135) and Raqqa, Syria (Creswell and Allan 1989: fig. 145), with two rows, and the later mosques of Qairawan, Tunisia (Creswell and Allan 1989: fig. 200) and Samarra, Iraq (Creswell and Allan 1989: fig. 232), with even more rows in their exedras. We may conclude, therefore, that if this is indeed the northern exedra of the mosque under discussion, the entire enclosure should be circumscribed by a northern wall. In order to determine the full size of the mosque in the first phase of construction, we postulate that the northern wall was located at the same distance from the northern pillar rows as the eastern wall from the eastern row of pillars (fig. 3). This suggests that the mosque was rectangular in shape, and not square, as in Kaplan’s plan. Confirmation for this proposal comes from other rectangular Umayyad mosques in the Syro-Palestinian region, most notably the Great Mosque of Damascus (Creswell and Allan 1989: 49) and al-Aqsa Mosque, Jerusalem (Grafman and Rosen-Ayalon 1996: fig. 3). Thus, the proportions of the White Mosque, as conjectured here, appear to be similar to those of other contemporaneous mosques in the region.

Another feature, the entrance to the mosque, offers conclusive support for this proposal. Although the present-day entrance is located in the north, next to the minaret, the original main entrance—now completely covered—was uncovered by Kaplan in the original eastern wall and is indicated on his plan; it too is attributed to the first building phase. There are four pillar bases to the south of this entrance, but only three such bases to its north. If a northern wall once circumscribed the entire enclosure, the doorway would have been positioned precisely at the centre of the eastern wall, in accordance with the common architectural formula for such mosques.

It is thus likely that the original plan of the mosque conformed to this reconstruction. As implied by Kaplan, these boundaries were later blurred, although he does not elaborate on the subsequent building phases. It is proposed here that this modification resulted from one of the major earthquakes that shook the region toward the end of the Umayyad period, an event that likely destroyed both the covered hall and the northern part of the mosque.

The Second Phase

As can be seen on the plan, both the western part of the covered hall and the western wall of the enclosure do not belong to the first phase. The entire western part, beyond the first four pillar bases, belongs to the second phase, which apparently was an attempt to reconstruct or renovate the mosque after it had been hit by the earthquake of 747 CE.2 Although not all the excavators discovered signs of destruction compatible with an earthquake, some indeed relate to this possibility. The evidence is inconclusive, since a significant proportion of the finds was found in disturbed stratigraphy. In other words, even if there had been significant damage, this may not have been evident in excavation. However, even minimal disturbance—not of the magnitude caused by the eleventh-century earthquake—may have been sufficient to warrant the renovations (see below).

To the best of our knowledge, the facade of the present-day covered hall and the nature of the construction reflect a later phase of renovation (fig. 4). This phase, which should be attributed to Salah al-Din in 1190, is mentioned in the historical sources by Mujir al-Din (1866), the well-known fifteenth-century historian. Kaplan notes that the renovation was hindered by the many burials in the environs, which made the building of the qibla—and the entire covered hall— problematic. According to Kaplan, some time probably elapsed from the time of the destruction until the reconstruction. Noteworthy is an excerpt from Ibn Batuta, from the mid-fourteenth century (1355), which relates a tradition that attributes to the area of the qibla—our southern wall—a burial of 300 saints (Ibn Batuta 1355: 128). Although a discussion of this tradition, the veracity of which is disputable, is beyond the scope of this article, it supports the architectural development proposed here, i.e. the deviation in the orientation of the qibla, due to the disturbance.

One still needs to account for the interim period between the earthquake, which occurred in the middle of the eighth century, and the renovations to which we now refer, which took place during the twelfth century. Indeed, there is evidence pointing to the important status of the mosque prior to 1190. Let us recall that not one, but two, earthquakes occurred in the interim and may both have destroyed the mosque: the first, as already discussed, took place in the eighth century, and another, devastating one occurred in 1033. This is evident from the writings of the traveller Nasir-i Khusrau, who visited Palestine one decade after the earthquake and grieved for the city of Ramla which was devastated in the early eleventh-century earthquake (1881: 21). It is highly probable that the western part of the mosque was then destroyed again. Thus, from an historical-chronological perspective, the period that elapsed should be calculated from the earthquake of 1033, in the Fatimid period, to Salah al-Din’s restoration of the mosque in 1190.

To reiterate, according to the sources, the present-day mosque reflects the Ayyubid renovations. This would include the simple mihrab which appears on the plan. However, al-Muqadassi, in his description of the mosque, elaborates on the mihrab, noting that the mosque surpasses all others in beauty, including the Damascus mosque and the al-Aqsa Mosque. To quote al-Muqadassi: “the main mosque of Ramla is called al-Abi‘ad—the White Mosque; it is more beautiful and luxurious than that of Damascus.” According to al-Muqadassi, it possesses the most luxurious mihrab, and “its minbar is second in beauty only to that of Jerusalem” (al-Muqadassi, p. 164). Al-Muqadassi, who lived in the second half of the tenth century CE in Palestine, is generally considered a reliable source.

From these descriptions we may deduce that the simple mihrab in the present-day mosque (fig. 5) is not the same one that earned al-Muqadassi’s praise and that, consequently, there must have been an earlier mihrab, belonging either to the first Umayyad phase or to the second phase of the mosque. This elaborate mihrab was presumably destroyed in the 1033 earthquake, and the present-day mihrab is probably the one renovated in Salah al-Din’s time. If this is the case, it suggests a third—hitherto unsuspected—period in the history of the mosque
.

The original plan of the mosque may now be reconstructed in full (fig. 6). The 6° deviation in the orientation of the covered southern hall— presumably destroyed by the earthquakes—should be cancelled. We suggest that the renovation of the mosque included the elongation of the eastern boundary wall to its present dimensions and the construction of a northern wall, encompassing the mosque as we know it today.

The historical events led to the following developments: the city, first threatened by the Carmatians, was conquered by the Crusaders. In 1187, following the Battle of Hittin, Salah al-Din freed Ramla from the Crusaders, leading him to renovate the mosque, as mentioned above. The present-day façade of the prayer hall is a remnant of those renovations. Two further stages took place in the Mamluk period, with the construction of the minaret (see below).

The subterranean cisterns in the mosque enclosure present a real archaeological enigma. In order to describe this enigma, we will digress briefly and describe another structure, also in Ramla: the outstanding subterranean cistern known as “the pools of Saint Helena” or the Aneziya, which lies to the north of the mosque across the main road in Ramla. M. de Vogüé, one of the most prominent researchers of the late nineteenth century, studied and measured this structure, publishing it in the early twentieth century (de Vogüé 1912). In the late 1930s, Creswell published a detailed plan of the cistern (1939: 162; fig. 7). Thus, in contrast to the limited information available regarding the mosque, we possess a wealth of information and a complete plan of this cistern.

As a starting point, it should be noted that this impressive architectural compound was built in one period, with no significant changes or modifications. Moreover, an inscription, visible to this day, dates the construction to 172 AH (789 CE), the time of Harun al-Rashid (Van Berchem 1897; fig. 8). This functional architectural structure was constructed as a system of subterranean pools, a project initiated by the administration to ensure a regular water supply to the public.

It is an irregular rectangular structure, divided into squares with cross-shaped pillars, from which arches spread out (fig. 9). This is one of the few structures in the country that can be attributed with certainty to the Abbasid period, a period somewhat limited in construction initiatives in this country. In addition to the good state of preservation of the pools, they are of architectural significance: this is the first case in which the pointed arch was used systematically. Throughout the Umayyad period, preceding the Abbasid, the classical arch, with a 180° curve, was used in Muslim architecture and only sporadic use was made of the pointed arch. The Ramla cistern, constructed in the eighth century CE, exhibits the first systematic use of the pointed arch. According to de Vogüé, the Ramla cistern precedes European architecture by four centuries in the use of pointed arches, which can be seen in the hall and the galleries. This is therefore a landmark in the history of architecture in general, and in the history of Ramla in particular.

The enigma presented by the pools within the mosque enclosure is rooted in their resemblance to the cistern described above. The three pools in the mosque enclosure resemble the others in their division of the space by means of monumental cross-shaped pillars extending in arches in the four directions. In this case too, there is a systematic use of the pointed arch. Indeed, the structure is reminiscent of a cathedral (fig. 10). The walls are lined in an identical plaster to the staircases, which descend at a 90° angle to the entrance.3

As previously mentioned, the large pools are dated to 789 CE, a landmark in the history of architecture. Given the similarities between these pools and those within the mosque enclosure, the question arises as to the date of the latter
. Since they are situated inside the Umayyad mosque, are they of Umayyad date too? If so, they would have been earlier than the large pools, and an earlier date than the commonly accepted date of 789 should be postulated for the architectural feature of pointed arches. Alternatively, perhaps the three pools within the mosque are Abbasid, like the large pools to which they bear an architectural resemblance. In this case they would have been built in the mosque at a later date than that of the mosque’s construction.4

In an effort to resolve this enigma, I superimposed the Abbasid cistern over the group of pools in the mosque enclosure. To my surprise, I found an exact correlation between them all (fig. 11). Evidently, both groups reflect an identical architectural plan.

Returning to the mosque, the pools in the compound indeed belong to an early period, but were presumably constructed after the eighth-century earthquake. Even if the destruction was not complete, this would have been an opportunity, with the first renovation of the mosque—that first hitherto unidentified phase. Moreover, their construction took place around the same time as the construction of the Harun al-Rashid pools. In other words, the entire first renovation of the mosque, including its subterranean cisterns, would have taken place after 747, contemporaneously with the Abbasid cistern. This resolves both the question of the date of the cisterns and the question of the pointed arches. The introduction of the three pools in the Umayyad mosque shortly after this period, under the Abbasids, would account for the new northern wall. The first one was removed for the construction of the three reservoirs. The new wall was described by Kaplan as belonging to the first stage—since he was unaware of an earlier stage and his evidence corroborated the criteria of early architecture. This is presumably the same stage at which the beautiful mihrab—whether Umayyad or Abbasid— was incorporated in the mosque. It is likely that this mihrab was the one destroyed in the 1033 earthquake, after which the simpler mihrab from the time of Salah al-Din was installed.

The last architectural element is the minaret, which, as noted by Kaplan, is built in the northern wall of the enclosure, attributed to the third phase of construction. Kaplan mentions that he did not uncover any earlier remains under the minaret in his archaeological investigations. Ben-Dov, who conducted a test pit there, also dated the minaret to the Mamluk period (1984).

An inscription at the entrance to the minaret records the date of its construction—1318, during the time of al-Nasir Muhammad ibn Qala’un. Hence, the minaret is Mamluk, built on the virgin soil of Ramla. This leads to the next query: if this tower is indeed from Mamluk times and was not built atop an earlier tower, where was the ancient tower situated? After all, al-Muqadassi, in the tenth century, mentions the minaret, which he says was built by Hisham, son of ʿAbd al-Malik, the brother of Suleiman, who founded the city of Ramla. This provides conclusive evidence of the existence of a pre-Mamluk minaret. This original minaret may have been built adjacent to the first northern wall, but any conjecture regarding its location is purely speculative.

After the expansion of the area of the mosque enclosure following its destruction by the first earthquake, it is conceivable that the second minaret was situated somewhere along the northern enclosure wall, not necessarily at the same location as the Mamluk one. As for the location of the minaret in Umayyad times, excavations at various sites suggest that the minaret was not restricted to a specific location in the mosque enclosure. Suffice it to mention the mosques of Jerash and Amman in Jordan. It is hoped that future investigations will uncover the original minaret of the White Mosque.

In sum, four phases should be attributed to the White Mosque of Ramla, and not three, as was believed until now. Furthermore, we are now able to attribute to each of these phases historical information hitherto unknown and to correlate different parts of the structure with the various phases (table 1). In addition, the problem of the three cisterns has been solved.

Phase Features Period Comments
1 Eastern wing, including part of covered prayer hall; exedra; entrance gate; mihrab?; minaret? Umayyad (first half of eighth century) According to multiple textual sources, the White Mosque at Ramla was first built in the second decade of the 8th century CE (Rosen-Ayalon, 2006)
2 Extension of eastern wall; northern wall; subterranean pools Abbasid (second half of eighth century)
3 Renovation of prayer hall; possibly western wing Ayyubid (twelfth century)
4 Minaret Mamluk (fourteenth century)
Footnotes

2 For our purposes, it is irrelevant whether the earthquake in which the mosque was damaged occurred in 747 CE or 749 CE, as has been proposed. For discussion of the problem of dating the earthquake, see Tsafrir and Foerster 1997: n. 227. There may even have been two earthquakes. There is no question, however, that at least one earthquake occurred in the mid-eighth century, strong enough to have caused the damage to our mosque.

3 A Mamluk inscription at the entrance to the southern reservoir points to its renovation, probably during one of the Mamluk renovations of the mosque, see L.A. Mayer

4 In Rosen-Ayalon 2002, I touched upon the problematicity of this issue. New light can now be shed on the matter.

Area A Tilted Wall Earthquake (?) - Early to Middle Islamic - 7th-11th centuries CE

Plans and Photos

Plans and Photos

  • Plan 1 - eastern squares of Area A from Kletter (2005)
  • Fig. 6 - Tilted Wall from Kletter (2005)

Discussion
Discussion

Textual Seismic Effects
11th century CE Palestine Quakes - 6 December 1033 CE

Effect                              Location Image(s) Description
  • Collapsed Walls
  • Folded Walls
  • Debris from collapsed walls
  • Buildings made structurally unsound
  • Cracked Floors
  • Cracked Buildings
  • Evacuations
  • Fatalities
  • Aftershocks
Ramla
Description

  • "... they went out from their houses into the streets because they saw the walls bending and yet intact, and the beams become separated from the walls and then revert to their former position. Strong buildings collapsed and new houses were pulled down. Many died in the ruins, for they could not escape. All went out from their dwellings, leaving everything behind. Wherever they turned they beheld God's powerful deeds. Walls crashed together and collapsed. Those that remained were shaky and rent. Nobody resided within them, for their owners feared they might fall down on top of them even before daybreak. Even to describe a part of the happenings, the hand would weary. Also the mind is distraught from what the eye saw and the ear heard. The verse has been fulfilled, "Behold the Lord empties out the land and lays it waste, distorts its face and scatters its inhabitants". He that is prudent will understand. For all were alike, like people like priest, like servant like master, when they left their places and sought refuge to save their lives. Many resigned themselves to the (Divine) judgment, reciting several verses (from Jer. 10.10, Ps. 104. 32, Job 9.6, Amos 9.5, Hos. 4.3, Nah. 1.6). This event took place on Thursday, 12 Tevet, suddenly before sunset, affecting not only Ramla but the whole of Filastin ... Thereupon the earthquake took place, the like of which there had not been since early times. On that night (the earth) shook again. All were in the streets, men, women, and children, imploring God, the Lord of the spirits, to quieten the earth and set it at rest and save both man and animal. On Friday, as well as on the following night, the shocks recurred. All were terrified and fear stricken. Earth and its inhabitants were molten (in fear). They all wept and cried with a loud voice, 0 merciful One, have mercy and withdraw the intended punishment. Do not enter upon judgment. In anger remember to be merciful and pay no heed to (our) former sins. All are trembling, sitting on the ground, startled every moment, shaking and swaying to and fro. For eight days the mind has not been satisfied and the soul is not at rest." - Solomon ben Zemah

  • "Over one of its porches is an inscription, stating that on Muharram 15, of the year 425 (December 10, 1033), there was an earthquake* of great violence, which threw down a large number of buildings, but that no single person sustained any injury" – Nasir-i Khusrau

  • "Half the houses in Ramla collapsed, as well as various parts of the walls. There were many victims." – Yahya of Antioch

  • "part of the Dome in Jerusalem fell, and half of the wall of Ramlah [Rhemli], and a countless multitude died" – Unpublished Greek Manuscript in Analecta Ierosolymitikis Stachiologias

  • "Among the old Jewish manuscripts there is an article on Ramla, which contains a magnificent description of the earthquake which occurred in Syria and Palestine on 12 Tabith 425. Here then is the description, which we have translated from the Hebrew:
    The people evacuated their houses in order to flee into the streets, the walls collapsed, floors cracked, well-built houses collapsed, new buildings fell down, people died, buried under the ruins, without any concern for their safety... People left their homes with no thought for their affairs which they had left behind. They abandoned their goods, which were destroyed, seeking only their own safety. Whichever direction they took, they knew that they would find a miracle of God, and so they ran with their heads down, then scattered. The buildings which remained upright were nevertheless cracked and were unsteady. When the eyes contemplated and the ears heard such a horror, people went out of their minds .. . These events occurred at sunset: they struck Ramla and all of Palestine Violently.
    " – Benjamin of Tudela

  • "In that year (a.H. 425) a very violent earthquake ravaged Syria and Egypt, focused most strongly on Ramla. The inhabitants left-their houses for several days- and almost a third of the dwellings collapsed, killing many people under the debris." – Ibn al-Athir

  • "An earthquake occurred at Ramla. The inhabitants evacuated the town together with their children, wives and slaves and spent eight days outside. The earthquake destroyed a third of the town and knocked down the great mosque, killing a large part of the population." – Ibn al-Jawzi

  • "A third of the town of ar-Ramla was destroyed whereas its mosque was literally torn apart. The inhabitants [of Ramla] moved outside the town and stayed there for eight days; when everything had calmed down, they returned to their town." – as-Suyūṭī

Archaeoseismic Effects
Antila Well Earthquake - 8th century CE

Effect Location Image(s) Description
  • Cracks along the walls of installations
  • Collapsed walls - large sections of collapse composed of neat ashlar stone construction
  • Dropped floors (subsidence)
  • Folded walls
  • Rebuilding
Areas J2 and K1

Fig. 2
  • Evidence of a major earthquake was discerned in Areas J2 and K1 (see Fig. 2 - site map); it included cracks along the walls of installations, large sections of collapse composed of neat ashlar stone construction that had not been robbed, floors that had dropped and walls that curved in unexpected directions. Wall collapse, which had been intentionally covered over with soil and hamra to save the building stones from being plundered, was observed. It seems that the residents of the town were concerned with the quick restoration of the settlement’s activity. Especially interesting was a series of jars, some positioned upside down, which were discovered in situ, smashed inside a room that was apparently used for storage [Fig. 6]. The jars dated to the first half of the eighth century CE and they seem to have been all damaged simultaneously in the same event. The room was leveled and quickly refurbished in an attempt to regain its capacity for industrial manufacture as soon as possible. The renovation of the room included the construction of new walls - Gorzalczany (2009b)
Broken Pottery found in fallen position Warehouse in Area J1-3

Fig. 6
Fig. 9
  • Especially interesting was a series of jars, some positioned upside down, which were discovered in situ, smashed inside a room that was apparently used for storage [Fig. 6]. The jars dated to the first half of the eighth century CE and they seem to have been all damaged simultaneously in the same event. - Gorzalczany (2009b)
Collapsed Walls Area K1

Fig. 2
  • large sections of collapse composed of neat ashlar stone construction that had not been robbed ... Wall collapse, which had been intentionally covered over with soil and hamra to save the building stones from being plundered, was observed. - Gorzalczany (2009b)

  • Gorzalczany and Salamon (2018) observed building stones of walls that had collapsed in a clear, `orderly' pattern found in situ (Fig. 2)
  • Fault Scarps        
  • Subsidence
  • Liquefaction
Area K1

Fig. 10
Fig. 4
Fig. 5
  • Indisputable proof of the earthquake occurrence was found in the balks of Area K1, where a fault in the layers of sand and hamra, which were split due to a fissure, stands out prominently (Fig. 10). One side of the layers in the section was lower than the other side. The fissure continued along several excavation squares and it caused a plaster floor and a column base that stood above it to sink 1.5 m [Fig. 4]. Such vertical movement of layers could only be caused by a powerful seismic event. An opposite fracture was discerned elsewhere on the site, where the movement was not only vertical but also horizontal, causing the layers to climb one atop the other [Fig. 5]. - Gorzalczany (2009b)

  • Gorzalczany and Salamon (2018) report that the column base and associated plaster floor which collectively sank 1.5 m [Fig. 4] were underlain by neatly superimposed layers of sand and hamra which constituted an artificial fill. Gorzalczany and Salamon (2018) found evidence that this artificial fill was placed in a foundation trench which was dug to set up an antilia type water well (Avitsur 1976: 60-63; Ayalon 2000) which abutted the plaster floor and columns. The presence of an antilia type water well indicates a shallow water table and a shallow water table, uncompacted fill, and alternating layers of strata with differing permeabilities is a veritable recipe for liquefaction during seismic events. Liquefaction, which is driven by temporal increases in pore pressure that cannot dissipate can be enhanced if pore pressures in the more permeable sandy layers cannot dissipate because they are surrounded and sealed by less permeable layers. Gorzalczany and Salamon (2018) report that the entire antilia installation - the pit and the lifting superstructure device together with the layers of fill and the occupation layer abutting them - collapsed and sank several meters. Damage to surrounding areas indicates that the pit (Fig. 5) constituted the central axis of the fall and the sand layers around the antilia [that appeared] broken in a stepped formation (Fig. 5) encompassed the pit.
Rebuilding ? White Mosque at Ramla
  • Rosen-Ayalon (2006:72) suggested that renovations to the White Mosque at Ramla in the second building phase was a reaction to seismic damage to the first phase from a mid 8th century CE earthquake - noting that although not all the excavators discovered signs of destruction compatible with an earthquake, some indeed relate to this possibility. Rosen-Ayalon (2006:72) described the physical archaeoseismic evidence as inconclusive.
    The evidence is inconclusive, since a significant proportion of the finds was found in disturbed stratigraphy. In other words, even if there had been significant damage, this may not have been evident in excavation. However, even minimal disturbance — not of the magnitude caused by the eleventh-century earthquake — may have been sufficient to warrant the renovations.

3rd Building Phase of the White Mosque at Ramla Earthquake - 11th century CE

Effect Location Image(s) Description
Collapsed Walls            Ramla
  • a violent earthquake overthrew a large number of buildings but none of the inhabitants were injured - Nasir i-Khosero reading from an inscription at the Great Mosque of Ramla sometime between 1046 and 1053 CE (Sefer Nameh:64)
Rebuilding ? White Mosque at Ramla
  • Rosen-Ayalon (2006:72) suggested that renovations to the White Mosque at Ramla in the third building phase occurred after the structure was damaged in the earthquake of 1033 CE. She suggested that third phase construction was carried out in 1190 CE and should be attributed to Salah al-Din. Rosen-Ayalon (2006:72) mentions that traveller Nasir i-Khosero [] visited Palestine one decade after the earthquake [of 1033 CE] and grieved for the city of Ramla which was devastated in the early eleventh-century earthquake. On page 64 a passage in a French translation of Sefer Nema by Nasir i-Khosero we can read:
    The area of the great mosque is three hundred paces by two hundred. An inscription, placed above the soffèh (bench), relates that on Moharrem 15, 425 ( December 11, 1033), a violent earthquake overthrew a large number of buildings but none of the inhabitants were injured.
    It should be noted that textual accounts also state that Ramla suffered damage during the earthquake of 1068 CE. The Crusaders arrived in 1099 CE and occupied Ramla after which a number of battles were fought in the area which could/would have delayed mosque renovations.

Area A Tilted Wall Earthquake (?) - Early to Middle Islamic - 7th-11th centuries CE

Effect                                  Location Image(s) Description
Tilted Wall            Wall W2 in Square E1 of Area A, located “within ‘Opher Park below newly constructed ‘Opher School in Ramla.”
  • Kletter (2005:57–60) documented a tilted wall (W2) within an Early Islamic structure in Square E1 of Area A, located “within ‘Opher Park below newly constructed ‘Opher School in Ramla.” The wall was found to consist of two construction phases (II and I), both of which exhibit the same tilt. Kletter (2005:60) suggested that the inclination “may have been due to an earthquake,” while also emphasizing that “the true cause for this feature is unknown.”

Archaeoseismic Deformation Maps
Area A Tilted Wall Earthquake (?) - Early to Middle Islamic - 7th-11th centuries CE

Deformation Map

click on image to open in a new tab

Modified by JW from Plan 1 of Kletter (2005)

Textual Intensity Estimates
11th century CE Palestine Quakes - 6 December 1033 CE

Effect                              Location Image(s) Description Intensity
  • Collapsed Walls
  • Folded Walls
  • Debris from collapsed walls
  • Buildings made structurally unsound
  • Cracked Floors
  • Cracked Buildings
  • Evacuations
  • Fatalities (from collapsed walls)
  • Aftershocks
Ramla
Description

  • "... they went out from their houses into the streets because they saw the walls bending and yet intact, and the beams become separated from the walls and then revert to their former position. Strong buildings collapsed and new houses were pulled down. Many died in the ruins, for they could not escape. All went out from their dwellings, leaving everything behind. Wherever they turned they beheld God's powerful deeds. Walls crashed together and collapsed. Those that remained were shaky and rent. Nobody resided within them, for their owners feared they might fall down on top of them even before daybreak. Even to describe a part of the happenings, the hand would weary. Also the mind is distraught from what the eye saw and the ear heard. The verse has been fulfilled, "Behold the Lord empties out the land and lays it waste, distorts its face and scatters its inhabitants". He that is prudent will understand. For all were alike, like people like priest, like servant like master, when they left their places and sought refuge to save their lives. Many resigned themselves to the (Divine) judgment, reciting several verses (from Jer. 10.10, Ps. 104. 32, Job 9.6, Amos 9.5, Hos. 4.3, Nah. 1.6). This event took place on Thursday, 12 Tevet, suddenly before sunset, affecting not only Ramla but the whole of Filastin ... Thereupon the earthquake took place, the like of which there had not been since early times. On that night (the earth) shook again. All were in the streets, men, women, and children, imploring God, the Lord of the spirits, to quieten the earth and set it at rest and save both man and animal. On Friday, as well as on the following night, the shocks recurred. All were terrified and fear stricken. Earth and its inhabitants were molten (in fear). They all wept and cried with a loud voice, 0 merciful One, have mercy and withdraw the intended punishment. Do not enter upon judgment. In anger remember to be merciful and pay no heed to (our) former sins. All are trembling, sitting on the ground, startled every moment, shaking and swaying to and fro. For eight days the mind has not been satisfied and the soul is not at rest." - Solomon ben Zemah

  • "Over one of its porches is an inscription, stating that on Muharram 15, of the year 425 (December 10, 1033), there was an earthquake* of great violence, which threw down a large number of buildings, but that no single person sustained any injury" – Nasir-i Khusrau

  • "Half the houses in Ramla collapsed, as well as various parts of the walls. There were many victims." – Yahya of Antioch

  • "part of the Dome in Jerusalem fell, and half of the wall of Ramlah [Rhemli], and a countless multitude died" – Unpublished Greek Manuscript in Analecta Ierosolymitikis Stachiologias

  • "Among the old Jewish manuscripts there is an article on Ramla, which contains a magnificent description of the earthquake which occurred in Syria and Palestine on 12 Tabith 425. Here then is the description, which we have translated from the Hebrew:
    The people evacuated their houses in order to flee into the streets, the walls collapsed, floors cracked, well-built houses collapsed, new buildings fell down, people died, buried under the ruins, without any concern for their safety... People left their homes with no thought for their affairs which they had left behind. They abandoned their goods, which were destroyed, seeking only their own safety. Whichever direction they took, they knew that they would find a miracle of God, and so they ran with their heads down, then scattered. The buildings which remained upright were nevertheless cracked and were unsteady. When the eyes contemplated and the ears heard such a horror, people went out of their minds .. . These events occurred at sunset: they struck Ramla and all of Palestine Violently.
    " – Benjamin of Tudela

  • "In that year (a.H. 425) a very violent earthquake ravaged Syria and Egypt, focused most strongly on Ramla. The inhabitants left-their houses for several days- and almost a third of the dwellings collapsed, killing many people under the debris." – Ibn al-Athir

  • "An earthquake occurred at Ramla. The inhabitants evacuated the town together with their children, wives and slaves and spent eight days outside. The earthquake destroyed a third of the town and knocked down the great mosque, killing a large part of the population." – Ibn al-Jawzi

  • "A third of the town of ar-Ramla was destroyed whereas its mosque was literally torn apart. The inhabitants [of Ramla] moved outside the town and stayed there for eight days; when everything had calmed down, they returned to their town." – as-Suyūṭī

  • VIII+
  • VII+
  • VIII+
  • VI+
  • VI+
  • VI+
  • ?
  • VIII+
  • ?
This archaeoseismic evidence requires a minimum Intensity of VIII (8) when using the Earthquake Archeological Effects chart of Rodríguez-Pascua et al (2013: 221-224). Ramla may be suject to liquefaction.

Archaeoseismic Intensity Estimates
Antila Well Earthquake - 8th century CE

Effect Location Image(s) Description Intensity
  • Cracks along the walls of installations (penetrative fracures in masonry blocks)
  • Collapsed walls - large sections of collapse composed of neat ashlar stone construction
  • Dropped floors (subsidence)
  • Folded walls
  • Rebuilding
Areas J2 and K1

Fig. 2
  • Evidence of a major earthquake was discerned in Areas J2 and K1 (see Fig. 2 - site map); it included cracks along the walls of installations, large sections of collapse composed of neat ashlar stone construction that had not been robbed, floors that had dropped and walls that curved in unexpected directions. Wall collapse, which had been intentionally covered over with soil and hamra to save the building stones from being plundered, was observed. It seems that the residents of the town were concerned with the quick restoration of the settlement’s activity. Especially interesting was a series of jars, some positioned upside down, which were discovered in situ, smashed inside a room that was apparently used for storage [Fig. 6]. The jars dated to the first half of the eighth century CE and they seem to have been all damaged simultaneously in the same event. The room was leveled and quickly refurbished in an attempt to regain its capacity for industrial manufacture as soon as possible. The renovation of the room included the construction of new walls - Gorzalczany (2009b)
  • VI+
  • VIII+
  • VI+
  • VII+
  • ?
Broken Pottery found in fallen position Warehouse in Area J1-3

Fig. 6
Fig. 9
  • Especially interesting was a series of jars, some positioned upside down, which were discovered in situ, smashed inside a room that was apparently used for storage [Fig. 6]. The jars dated to the first half of the eighth century CE and they seem to have been all damaged simultaneously in the same event. - Gorzalczany (2009b)
VII+
Collapsed Walls Area K1

Fig. 2
  • large sections of collapse composed of neat ashlar stone construction that had not been robbed ... Wall collapse, which had been intentionally covered over with soil and hamra to save the building stones from being plundered, was observed. - Gorzalczany (2009b)

  • Gorzalczany and Salamon (2018) observed building stones of walls that had collapsed in a clear, `orderly' pattern found in situ (Fig. 2)
VIII+
  • Fault Scarps        
  • Subsidence
  • Liquefaction
Area K1

Fig. 10
Fig. 4
Fig. 5
  • Indisputable proof of the earthquake occurrence was found in the balks of Area K1, where a fault in the layers of sand and hamra, which were split due to a fissure, stands out prominently (Fig. 10). One side of the layers in the section was lower than the other side. The fissure continued along several excavation squares and it caused a plaster floor and a column base that stood above it to sink 1.5 m [Fig. 4]. Such vertical movement of layers could only be caused by a powerful seismic event. An opposite fracture was discerned elsewhere on the site, where the movement was not only vertical but also horizontal, causing the layers to climb one atop the other [Fig. 5]. - Gorzalczany (2009b)

  • Gorzalczany and Salamon (2018) report that the column base and associated plaster floor which collectively sank 1.5 m [Fig. 4] were underlain by neatly superimposed layers of sand and hamra which constituted an artificial fill. Gorzalczany and Salamon (2018) found evidence that this artificial fill was placed in a foundation trench which was dug to set up an antilia type water well (Avitsur 1976: 60-63; Ayalon 2000) which abutted the plaster floor and columns. The presence of an antilia type water well indicates a shallow water table and a shallow water table, uncompacted fill, and alternating layers of strata with differing permeabilities is a veritable recipe for liquefaction during seismic events. Liquefaction, which is driven by temporal increases in pore pressure that cannot dissipate can be enhanced if pore pressures in the more permeable sandy layers cannot dissipate because they are surrounded and sealed by less permeable layers. Gorzalczany and Salamon (2018) report that the entire antilia installation - the pit and the lifting superstructure device together with the layers of fill and the occupation layer abutting them - collapsed and sank several meters. Damage to surrounding areas indicates that the pit (Fig. 5) constituted the central axis of the fall and the sand layers around the antilia [that appeared] broken in a stepped formation (Fig. 5) encompassed the pit.
  • VII+
  • VI+
  • VII+
Rebuilding ? White Mosque at Ramla
  • Rosen-Ayalon (2006:72) suggested that renovations to the White Mosque at Ramla in the second building phase was a reaction to seismic damage to the first phase from a mid 8th century CE earthquake - noting that although not all the excavators discovered signs of destruction compatible with an earthquake, some indeed relate to this possibility. Rosen-Ayalon (2006:72) described the physical archaeoseismic evidence as inconclusive.
    The evidence is inconclusive, since a significant proportion of the finds was found in disturbed stratigraphy. In other words, even if there had been significant damage, this may not have been evident in excavation. However, even minimal disturbance — not of the magnitude caused by the eleventh-century earthquake — may have been sufficient to warrant the renovations.
?
Although this archaeoseismic evidence requires a minimum Intensity of VIII (8) when using the Earthquake Archeological Effects chart of Rodríguez-Pascua et al (2013: 221-224), much of the damage and collapse may have been primarily due to liquefaction rather than strength of shaking on the structures. Rapid rebuilding efforts and attempts to cover up stone tumbles suggest that this wasn't an earthquake which wiped out the city due to widespread collapse. As it appears that liquefaction was a driving factor for the damage, the Intensity for this earthquake is estimated at VII (7) based on Rodríguez-Pascua et al (2013)'s assessment for liquefaction.

3rd Building Phase of the White Mosque at Ramla Earthquake - 11th century CE

Effect Location Image(s) Description Intensity
Collapsed Walls            Ramla
  • a violent earthquake overthrew a large number of buildings but none of the inhabitants were injured - Nasir i-Khosero reading from an inscription at the Great Mosque of Ramla sometime between 1046 and 1053 CE (Sefer Nameh:64)
VIII+
Rebuilding ? White Mosque at Ramla
  • Rosen-Ayalon (2006:72) suggested that renovations to the White Mosque at Ramla in the third building phase occurred after the structure was damaged in the earthquake of 1033 CE. She suggested that third phase construction was carried out in 1190 CE and should be attributed to Salah al-Din. Rosen-Ayalon (2006:72) mentions that traveller Nasir i-Khosero [] visited Palestine one decade after the earthquake [of 1033 CE] and grieved for the city of Ramla which was devastated in the early eleventh-century earthquake. On page 64 a passage in a French translation of Sefer Nema by Nasir i-Khosero we can read:
    The area of the great mosque is three hundred paces by two hundred. An inscription, placed above the soffèh (bench), relates that on Moharrem 15, 425 ( December 11, 1033), a violent earthquake overthrew a large number of buildings but none of the inhabitants were injured.
    It should be noted that textual accounts also state that Ramla suffered damage during the earthquake of 1068 CE. The Crusaders arrived in 1099 CE and occupied Ramla after which a number of battles were fought in the area which could/would have delayed mosque renovations.
?
The collapsed walls requires a minimum Intensity of VIII (8) when using the Earthquake Archeological Effects chart of Rodríguez-Pascua et al (2013: 221-224. However, since Ramla is subject to liquefaction, local bedrock intensity is downgraded to VII (7).

Area A Tilted Wall Earthquake (?) - Early to Middle Islamic - 7th-11th centuries CE

Effect                                  Location Image(s) Description Intensity
Tilted Wall Wall W2 in Square E1 of Area A, located “within ‘Opher Park below newly constructed ‘Opher School in Ramla.”
  • Kletter (2005:57–60) documented a tilted wall (W2) within an Early Islamic structure in Square E1 of Area A, located “within ‘Opher Park below newly constructed ‘Opher School in Ramla.” The wall was found to consist of two construction phases (II and I), both of which exhibit the same tilt. Kletter (2005:60) suggested that the inclination “may have been due to an earthquake,” while also emphasizing that “the true cause for this feature is unknown.”
VI+
This archaeoseismic evidence requires a minimum Intensity of VI (6) when using the Earthquake Archeological Effects chart of Rodríguez-Pascua et al (2013: 221-224). Ramla may be suject to liquefaction.

Calculator
Remove Site Effect

Variable Input Units Notes
unitless Intensity Estimate before considering site effect
m/s Enter a value of 655 for no site effect
Equation comes from Darvasi and Agnon (2019)
Variable Output Units Notes
unitless Intensity with Site Effect Removed
  

Using Darvasi and Agnon (2019) to remove site effect does not work for this location.
VS30 values for Lod

VS30 is the average seismic shear-wave velocity from the surface to a depth of 30 meters at earthquake frequencies (below ~5 Hz.). Table 2 of Darvasi and Agnon (2019) lists two VS30 values for Lod.

Location VS30
Lod 1 320 m/s
Lod 2 374 m/s

Notes and Further Reading
References

Articles and Books

Avni, Gideon () Chapter 5 Excavations in Ramla, 1990–2018: Reconstructing the Early Islamic City in Ramla Archaeopress pp. 31-63

Cytryn, Katia (2010) The Mamluk Minarets of Ramla , Bulletin Du Centre De Recherche Francais a Jerusalem - describes architecture and history of the minaret of the White Mosque but does not mention earthquakes

Gat, S. 2004. The City of Ramla in the Middle Ages. (Unpublished Ph.D. Dissertation, Bar Ilan University) Ramat Gan. (Hebrew)

Gat, S. 2007. A flourishing Arab city: The economy of Medieval Ramla. Cathedra 123:39-66. (Hebrew; English summary pp. 191-192)

Gat, S. 2008. The forgotten destruction of early Ramla. Qadmoniot 135:64-69. (Hebrew)

Gorzalczany, Amir and Spivak, Polina (2008) Ramla (South). Ḥadashot Arkheologiyot–Excavations and Surveys in Israel 120.

Gorzalczany, A., (2008) Excavations in Residential and Industrial Zone of the Early Islamic Period at Maẓliaḥ. Qadmoniot 135: 30–35 (Hebrew).

Gorzalczany, A. (2009b) Ramla (South). Hadashot Arkheologiot Excavations and Surveys in Israel 121.

Gorzalczany, A.; 'Ad, Uzi (2010) Ramla (South). Ḥadashot Arkheologiyot–Excavations and Surveys in Israel 122.

Gorzalczany, A., and Marcus, J. (2010) Ramla (South). Ḥadashot Arkheologiyot–Excavations and Surveys in Israel 122.

Gorzalczany, A.; Yehuda, L.; and Torge, H. 2010 Ramla (South). Ḥadashot Arkheologiyot–Excavations and Surveys in Israel 122.

Gorzalczany, A., Salamon, A. (2018). "Archaeological Evidence of a Powerful Earthquake in Ramla, Israel, during the Early Islamic Period."

i-Khosero, Nasir (1881) Sefer Nameh translated into French by Charles Henri Auguste Schefer , Paris - open access at archive.org

Kletter, R. (2005) Early Islamic Remains at Ramla Part 1 Atiqot 49, 2005

Kletter, R. (2005) Early Islamic Remains at Ramla Part 2 Atiqot 49, 2005

Petersen, A. and D. Pringle (2021). Ramla: City of Muslim Palestine, 715-1917: Studies in History, Archaeology and Architecture, Archaeopress. - at JSTOR

Rosen-Ayalon, M. (2006). "The White Mosque of Ramla: Retracing Its History." Israel Exploration Journal 56(1): 67-83.

Schwartz, J. J. (1991). Lod (Lydda), Israel: From Its Origins Through the Byzantine Period, 5600 B.C.E.-640 C.E, B.A.R.

Taxel, I. (2013). "Rural Settlement Processes in Central Palestine, ca. 640–800 C.E.: The Ramla-Yavneh Region as a Case Study." Bulletin of the American Schools of Oriental Research 369: 157 - 199.

Bibliography from Stern et al (1993 v.3)

Lod

Abel, GP 2, 370

J. Kaplan, JNES 28 (1969), 197-199

J. Porath, ESI 1 (1982), 67

A. Oppenheimer, HUCA 59 (1988), 115-136

Weippert 1988, 112, 691

E. Braun, PEQ 121 (1989), 1-43;1. Schwartz,I£140 (1990), 47-57.

Ramla

Conder-Kitchener SWP2, 271-273

C. Clerrnont-Ganneau, ARP 1, 25

J. Kaplan, 'Atiqot 2 (1959), 106- 115

L.A. Mayer, ibid., 116-117

M. Rosen-Ayalon and A. Eitan, IEJ 16 (1966), 148-150

id., Ramla Excavations (Israel Museum Cat. 66), Jerusalem 1969

M. Rosen-Ayalon, IEJ 26 (1976), 104-119.

Bibliography from Stern et al (2008)

Lod

Main publications

J. J. Schwartz, Lod (Lydda), Israel: From its Origins Through the Byzantine Period, 5600 B.C.E.- 640 C.E. (BAR/IS 571), Oxford 1991

ibid. (Review), PEQ 125 (1993), 177–178

N. Blockman, The Lodian Culture (Jericho IX) Following the Excavation at Newe Yarak, Lod (M.A. thesis), Tel Aviv 1997 (Eng. abstract)

R. Gophna & I. Beit-Arieh, Map of Lod (80) (Archaeological Survey of Israel), Jerusalem 1997

B. -Z. Rosenfeld, Lod and its Sages: The Period of the Mishnah and the Talmud, Jerusalem 1997 (Heb.).

Studies

L. Gershuny, ESI 10 (1991), 20

J. Kaplan, ABD, 4, New York 1992, 346–347

A. Rosenberger & A. Shavit, ESI 13 (1993), 54–56

A. Gopher (& A. Rosenberger), ibid. 14 (1994), 85–86

id. (& N. Blackman), ‘Atiqot 47 (2004), 1–50

A. Feldstein, ESI 19 (1997), 50*

H. Khalaily & A. Gopher, ibid., 51*

E. C. M. Van den Brink, ESI 19 (1997), 49*–50*

110 (1999), 47*–48*

id., AJA 102 (1998), 768–769

id., Egypt and the Levant , London 2002, 286–305

id. (& E. L. Braun), In Quest of Ancient Settlements and Landscapes, Tel Aviv 2002, 167–192

S. Golan, ESI 112 (2000), 65–66

O. Shmueli, ibid., 66*–67*

E. Yannai & O. Marder, ibid., 63–65

E. L. Braun, Egypt and the Levant , London 2002, 173–189

id., Egypt at its Origins: Proceedings of the International Conference “Origin of the State, Predynastic and Early Dynastic Egypt,” Krakow, 28.8.–1.9.2002 (Barbara Adams Fest.

Orientalia Lovaniensia Analecta 138; eds. S. Hendricks et al.), Leuven 2004, 508–517

id., MdB 162 (2004), 42–45

M. Rosen-Ayalon, Art et archéologie islamiques en Palestine (Islamiques), Paris 2002, 115–117

H. Torgë, ESI 115 (2003), 44*

Y. Arbel, ibid. 116 (2004), 40*

Y. Goren, ‘Atiqot 47 (2004), 51–55

Y. Paz et al., Salvage Excavation Reports 2 (2005), 114–158.

Later Periods (includes The Floor Mosaic)

R. Reich, ‘Atiqot 25 (1994), 190

A. Kloner, Aram 8 (1996), 119–122

S. A. Kingsley, Minerva 8/4 (1997), 45–47

M. Avissar, ESI 17 (1998), 169–172; 20 (2000), 64*–65*

id., “Couched as a Lion...Depictions of Animals from the Leo Mildenberg Collection (Reuben & Edith Hecht Museum Catalogue 16), Haifa 1999, 55–56

id., Tropis VI: Proceedings of the 6th International Symposium on Ship Construction in Antiquity, Lamia 1996 (ed. H. Tzalas), Athens 2001, 47–54

Y. Selinger, BAIAS 16 (1998), 75–84

E. Kogan-Zehavi, ESI 20 (2000), 65*

A. Ovadiah (& S. Mucznik), Assaph B/3 (1998), 1–18

id., Art and Archaeology in Israel and Neighbouring Countries: Antiquity and Late Antiquity, London 2002 (index)

E. Friedheim, JSRS 9 (2000), xxi

Y. Paz, TA 27 (2000), 295

B. Zissu & H. Eshel, INJ 14 (2000–2002), 157–158

F. E. Udoh, PEQ 134 (2002), 130–143

E. Haddad & M. Avissar, IJNA 32 (2003), 73–77

Y. Arbel, ESI 116 (2004), 40*

Z. Friedman, IJNA 33 (2004), 164–167

B. Rosen, ibid., 167–168.

Ramla

Main Publications

Ramla: The Development of a Town from the Early Islamic to Ottoman Periods (IAA Booklet 4; eds. S. Gibson & F. Vitto), Jerusalem 1999; ‘Atiqot 49 (2005), 57–130.

Studies

M. Rosen-Ayalon, BA 56 (1993), 146–148

id., Arabica 43 (1996), 250–263

id., OEANE, 4, New York 1997, 404

id, Art et archéologie islamiques en Palestine (Islamiques), Paris 2002, 53–60, 108–109, 111–114

A. Baldwin, Egypt and Syria in the Fatimid, Ayyubid and Mamluk Eras (Orientalia Lovaniensia Analecta 72

eds. U. Vermeulen & D. De Smet), Leuven 1995

A. D. Petersen, Levant 27 (1995), 75–102

32 (2000), 97–99

33 (2001), 1–6 (with R. Wardill)

id., Egypt and Syria in the Fatimid, Ayyubid and Mamluk Eras, 3: Proceedinsg of the 6th, 7th, and 8th International Colloquium, Leuven, May 1997, 1998 and 1999 (Orientalia Lovaniensia Analecta 102

eds. U. Vermeulen & J. Van Steenbergen), Leuven 2001, 345–358

id., Antiquity 79/306 (2005), 858–864

N. Luz, Cathedra 79 (1996), 203

id., Journal of the Royal Asiatic Society 7 (1997), 27–54

id., Studies in the Geography of Israel 15 (1998), viii–ix

D. Glick (& D. Gamil), ESI 19 (1999), 52*–53*; 106*–107*; 109 (1999), 67*

M. Sharon, Bulletin of the School of Oriental and African Studies 60 (1997), 100–108

id., ‘Atiqot 49 (2005), 123–125

R. Schick, NEA 61 (1998), 76

O. Segal, ESI 18 (1998), 77

Y. Yasur-Landau, ibid., 76

O. Abd Rabu, ibid. 110 (1999), 54*

H. Geva, Archaeological Sites in Israel, 4, Jerusalem 1999, 21–23

O. Gutfeld, ESI 109 (1999), 65*–66*, 67*–68*

E. Haddad, ibid. 110 (1999), 51*; 111 (2000), 103*–104*

Y. Hirschfeld, ibid. 110 (1999), 52*

M. Priel, ibid. 109 (1999), 66*

D. Pringle, Levant 31 (1999), 318

Y. Shor, ESI 110 (1999), 53*–54*

M. Avissar, ibid. 112 (2000), 68*–69*

E. Ayyash, ibid., 69*–70*

Y. Elisha, ibid. 111 (2000), 104*

I. Freestone & Y. Gorin-Rosen, La route du verre: ateliers primaires et secondaires du 2. millenaire ap. J.-C. au Moyen Age (Travaux de la Maison de l’Orient 33; ed. M. -D. Nenna), Lyon 2000, 65–83

R. Kletter, ESI 111 (2000), 56*–57*

id., ‘Atiqot 49 (2005), 57–99, 117–119

S. Kol-Ya‘aqov, ibid. 112 (2000), 67*–68*

Y. Paz, TA 27 (2000), 295–296

O. Syon, ESI 20 (2000), 66*; 116 (2004), 72*

id., ‘Atiqot 46 (2004), 133* (pt. with A. Berman)

F. Vitto, ibid. 111 (2000), 55*

Y. Zelinger, ibid., 57*–58*; 113 (2001), 123*–124*

id. (& O. Shmueli), In Quest of Ancient Settlements and Landscapes, Tel Aviv 2002, 279–288

S. Golan, ESI 114 (2002), 68*–69*

H. Torge & M. Cohen, ibid., 69*

A. de Vincenz, Transport Amphorae and Trade in the Eastern Mediterranean: Acts of the International Colloquium at the Danish Institute at Athens, 26–29.9.2002 (Monographs of the Danish Institute at Athens 5; eds. J. Eiring & J. Lund), Aarhus 2004, 403–406

S. Gudovitz, ESI 116 (2004), 41*, 71*–72*

E. Kogan-Zehavi, ibid., 41*–42*

N. Amitai-Preiss, ‘Atiqot 49 (2005), 121–122

A. Berman & H. Sokolov, ibid., 115; Y. Gorin-Rosen & N. Katsnelson, ibid., 101–114

M. Sade, ibid., 127–130.

Notes

  • Ramla is based on the Arabic root word Raml which means sand (Rosen-Ayalon, 2006).
  • The book Sefer Nameh was written by Nasir i-Khosero based on a 7 year travelogue beginning in 1046 CE. His visit to Ramla would have thus been between 1046 and 1053 CE - i.e. after the 1033 CE Quake but before the 1068 CE Quake.

Wikipedia pages

Lod

  • from Wikipedia - click link to open new tab


Ramla

  • from Wikipedia - click link to open new tab


White Mosque of Ramle

  • from Wikipedia - click link to open new tab


Matzliah

  • from Wikipedia - click link to open new tab