Open this page in a new tab

Jerusalem - Armenian Garden

Introduction
ChatGPT Introduction

The Armenian Garden lies at the north edge of the Armenian Quarter, close to Jaffa Gate and the Citadel. Across decades of excavation, this open tract has yielded a dense archaeological record, framing the southwest Old City’s evolution from Iron Age suburb to Roman and Byzantine townscape, and into the early Islamic periods.

Soundings in the garden exposed Iron Age occupation, interpreted as an extra-mural quarter serving fields and terraces west of the city. Later works uncovered massive platform remains associated with the setting of Herod’s palatial complex near the western defenses, anchoring the area to the royal topography of early Roman Jerusalem.

Late Roman layers produced roof tiles and pipes stamped by the Tenth Legion, marking the military imprint on the quarter after 70 CE. Nearby exposures add street lines, workspaces, and domestic units that speak to the city’s planned rebuild as Aelia Capitolina and to its Byzantine flourishing.

Strata continue into the Umayyad and Abbasid eras, with ceramics and architecture indicating sustained urban life. Taken together, the Armenian Garden’s sequence offers a compact, readable cross-section: from rural margins, to royal precinct, to legionary town, to a multi-period urban neighborhood at the western approach to Mount Zion.

Maps and Plans
Maps and Plans

Maps

Normal Size

  • Map of Armenian Quarter from wikipedia

Magnified

  • Map of Armenian Quarter from wikipedia

Plans

Area Plans

Normal Size

  • Fig. 1 Byzantine I phase from Tushingham (1985)
  • Fig. 2 Byzantine II phase from Tushingham (1985)
  • Fig. 3 Byzantine III phase from Tushingham (1985)

Magnified

  • Fig. 1 Byzantine I phase from Tushingham (1985)
  • Fig. 2 Byzantine II phase from Tushingham (1985)
  • Fig. 3 Byzantine III phase from Tushingham (1985)

Archaeoseismic Chronology
End of Phase I Earthquake? - 7th-8th century CE

Discussion

Discussion

References
Zimni-Gitler in Lichtenberger and Raja (2025)

The Armenian Garden

With its detailed publication, the excavations in the Armenian Garden under the direction of A. D. Tushingham27 from 1961 to 1967 provide lots of material for studying the Byzantine–Early Islamic period. This site might also show archaeological evidence for the AD 749 earthquake which was not interpreted as such by the excavator.

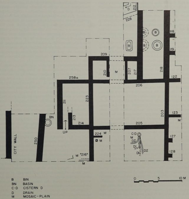
Three phases of buildings of the Byzantine–Early Islamic period were distinguished: the phase entitled ‘Byzantine I’, which clearly served a religious (Christian) purpose, likely a chapel or even a small church.28 Attributed to this phase are an apse, the ‘Hare Mosaic’, an additional mosaic, some cisterns, and a few walls.29 The excavators attribute this phase to the end of the reign of Justinian. A. D. Tushingham assumes this phase was short,30 suggesting an “abrupt end by a washout.”31

After that, a completely different constructed building sounded the bell for a new architectural phase in this area. The so-called ‘Byzantine II’ phase consists of a building erected with a completely different orientation. It had a central courtyard and three adjoining smaller rooms. A. D. Tushingham describes this building as a possible khan or a caravanserai.32

Additionally, an area enclosed with walls containing structures which are called ‘bins’, is attributed to this period.33 Their function is not entirely clear. The bins seem to have contained several pieces of burned plaster and burned stones as well as a large number of tiles.34 However, possible use as a kiln was excluded by the excavator.35 This phase was brought to an end by a ‘great washout’, similar to the previous one. It is described by A. D. Tushingham as follows: “It is difficult to believe that rains alone could have been responsible for such a flood, but there is no doubt that the water was the agent of the destruction.”36

The last phase, ‘Byzantine III’, was a reconstruction of the previous one but with a reduction of the large central courtyard, which was cut in half by an inserted wall.38 The excavator interpreted both of the latter buildings as a possible caravanserai or a pension for pilgrims.39

In the light of the interpretation of the DEI area I results, the transition between the different phases should be reassessed. A. D. Tushingham claims that the last of the phases, ‘Byzantine III’, was destroyed during the seventh century AD, either by the Persian conquest in AD 614 or by the ‘Muslim conquest’ in AD 638 and only resettled in the medieval period.40 Such an occupation gap does not seem very likely, considering that during the Umayyad period, the south-western hill was still a flourishing place, especially for Christian pilgrims, as is known from various sources.

However, A. D. Tushingham still reports excavated material, such as pottery and coins, from the Umayyad and Abbasid periods, mainly in various fillings.41 This does indicate that the area was occupied during this period, but no architectural features were attributed to this period.

J. Magness reassessed the pottery assemblages found in the excavations of the Armenian Garden. She discovered that the pottery of the Byzantine levels includes a mixture of types that can be dated from the sixth to the eighth centuries AD. Therefore, she concludes that it might be possible that the settlement phase in the Armenian Garden cannot be dated exclusively to the Byzantine period but can also have continued throughout the Umayyad period.42 Considering again the archaeological evidence of continuous occupation from DEI area I,43 a similar inhabitation pattern throughout the Umayyad period in the nearby Armenian Garden seems very likely.

Therefore, the author suggests in the following a reassessment of the Byzantine occupational phases — at least the later ones — into the Early Islamic period. Instead of ‘washouts’ (or the ‘Muslim conquest’) which were described by the excavator, these events might be connected to the earthquake. Following each ‘washout’ the area was rebuilt differently. Similarities can be drawn with the excavation results of the nearby DEI area I — after the destructive earthquake, the urban layout was altered drastically, thus changing the nature of the site.

The transition between the excavator’s phases ‘Byzantine I’ and ‘Byzantine II’ in particular may be looked at here: from a chapel to an architecturally completely different, possible caravanserai.

Two possible solutions can be considered for the reconstruction of the Armenian Garden’s history:

Either the earthquake occurred between Tushingham’s phases ‘Byzantine I’ and ‘Byzantine II’ and as a consequence, the former chapel with an apse was overbuilt by the suggested caravanserai (instead of rebuilding the chapel). In any case, these measures changed the nature of the site altogether. The other option is the modification of the caravanserai in Tushingham’s phases ‘Byzantine II’ and ‘Byzantine III’ might be a possible result of rebuilding measures following the earthquake.44

J. Magness has also reassessed the dating of the repairing of the city wall to the Early Islamic period (see below); as is analysed by A. D. Tushingham, this repair work corresponds with his ‘Byzantine II’ period.45 This dating would confirm that Tushingham’s ‘Byzantine II’ phase can be dated post-earthquake.

Consequently, the ‘Byzantine III’ phase was a time in which the Armenian Garden was extensively repaired and rebuilt. Perhaps this was necessary after a destructive event, such as an earthquake, similar to DEI area I.

Furthermore, the so-called ‘bins’ mentioned above, which can also be attributed to the possible early Islamic layers, contain a lot of burnt material and former building material, such as burnt plaster and tiles, as described by A. D. Tushingham.47 It can be suggested that this material could be the remains of the destroyed former buildings, the ‘Byzantine I’ structures. Those ‘bins’ were sealed, as described by A. D. Tushingham, by the latest ‘Byzantine III’ floor, which supports that argument.48 For this, a detailed find analysis of the content of these ‘bins’ would be necessary.

Certainly, this chapter cannot provide a complete detailed reassessment of all the stratigraphical contexts and corresponding finds of the excavation in the Armenian Garden; still, it can provide cause to reconsider the archaeological history of the site during the transitional period from the Byzantine to the Early Islamic period.
Footnotes

27 From 1962 onwards; the first year (1961) was under the direction of R. de Vaux and J. A. Callaway (Tushingham 1985, 3).

28 Tushingham 1985, 101, pl. 6.

29 Tushingham 1985, 101, pl. 6.

30 Without providing a further time frame for “short.”

31 Tushingham 1985, 101. It remains uncertain what exactly is meant by “washout.”

32 Tushingham 1985, 104.

33 Tushingham 1985, 101–02, pl. 6.

34 Tushingham 1985, 79.

35 Tushingham 1985, 79.

36 Tushingham 1985, 69.

37 Which is actually subdivided into IIIA (redressing the damage caused by the previous 'washout') and IIIB (actual rebuilding measures; Tushingham 1985, 103). 38 Tushingham 1985, 103–04.

38 Tushingham 1985. 103-04.

39 Tushingham 1985. 104.

40 Tushingham 1985, 104-05. Many earlier scholars, especially from the 1960s and 1970s, attributed any urban changes during this period to the `Muslim conquest, neglecting the possibility of the AD 749 earthquake. But this view is no longer reflected in modern research (Avni 2014, 14).

41 Tushingham 1985, 105-06. He wrote that the majority of the Umayyad and Abbasid coins stems from 'deposits that on stratigraphic grounds can be assigned to the fills chat precede the first medieval, that is Ayyubid, occupation of the site' (Tushingham 1985, 106).

42 Magness 1991, 212.

43 Zimni 2023; Namdar and others 2024.

44 We must also consider the possibility that several earthquakes or aftershocks occurred in a short time, causing two different “washouts” in the Armenian Garden.

45 Keeping in mind, that these repairs are either a result of the earthquake or might also be the result of the reconstruction of the city walls by Caliph Hisham.

46 Tushingham 1985, 65.

47 Tushingham 1985, 79.

48 Tushingham 1985, 79.

End of Phase II Earthquake?- 7th-8th century CE

Discussion

Discussion

References
Zimni-Gitler in Lichtenberger and Raja (2025)

The Armenian Garden

With its detailed publication, the excavations in the Armenian Garden under the direction of A. D. Tushingham27 from 1961 to 1967 provide lots of material for studying the Byzantine–Early Islamic period. This site might also show archaeological evidence for the AD 749 earthquake which was not interpreted as such by the excavator.

Three phases of buildings of the Byzantine–Early Islamic period were distinguished: the phase entitled ‘Byzantine I’, which clearly served a religious (Christian) purpose, likely a chapel or even a small church.28 Attributed to this phase are an apse, the ‘Hare Mosaic’, an additional mosaic, some cisterns, and a few walls.29 The excavators attribute this phase to the end of the reign of Justinian. A. D. Tushingham assumes this phase was short,30 suggesting an “abrupt end by a washout.”31

After that, a completely different constructed building sounded the bell for a new architectural phase in this area. The so-called ‘Byzantine II’ phase consists of a building erected with a completely different orientation. It had a central courtyard and three adjoining smaller rooms. A. D. Tushingham describes this building as a possible khan or a caravanserai.32

Additionally, an area enclosed with walls containing structures which are called ‘bins’, is attributed to this period.33 Their function is not entirely clear. The bins seem to have contained several pieces of burned plaster and burned stones as well as a large number of tiles.34 However, possible use as a kiln was excluded by the excavator.35 This phase was brought to an end by a ‘great washout’, similar to the previous one. It is described by A. D. Tushingham as follows: “It is difficult to believe that rains alone could have been responsible for such a flood, but there is no doubt that the water was the agent of the destruction.”36

The last phase, ‘Byzantine III’, was a reconstruction of the previous one but with a reduction of the large central courtyard, which was cut in half by an inserted wall.38 The excavator interpreted both of the latter buildings as a possible caravanserai or a pension for pilgrims.39

In the light of the interpretation of the DEI area I results, the transition between the different phases should be reassessed. A. D. Tushingham claims that the last of the phases, ‘Byzantine III’, was destroyed during the seventh century AD, either by the Persian conquest in AD 614 or by the ‘Muslim conquest’ in AD 638 and only resettled in the medieval period.40 Such an occupation gap does not seem very likely, considering that during the Umayyad period, the south-western hill was still a flourishing place, especially for Christian pilgrims, as is known from various sources.

However, A. D. Tushingham still reports excavated material, such as pottery and coins, from the Umayyad and Abbasid periods, mainly in various fillings.41 This does indicate that the area was occupied during this period, but no architectural features were attributed to this period.

J. Magness reassessed the pottery assemblages found in the excavations of the Armenian Garden. She discovered that the pottery of the Byzantine levels includes a mixture of types that can be dated from the sixth to the eighth centuries AD. Therefore, she concludes that it might be possible that the settlement phase in the Armenian Garden cannot be dated exclusively to the Byzantine period but can also have continued throughout the Umayyad period.42 Considering again the archaeological evidence of continuous occupation from DEI area I,43 a similar inhabitation pattern throughout the Umayyad period in the nearby Armenian Garden seems very likely.

Therefore, the author suggests in the following a reassessment of the Byzantine occupational phases — at least the later ones — into the Early Islamic period. Instead of ‘washouts’ (or the ‘Muslim conquest’) which were described by the excavator, these events might be connected to the earthquake. Following each ‘washout’ the area was rebuilt differently. Similarities can be drawn with the excavation results of the nearby DEI area I — after the destructive earthquake, the urban layout was altered drastically, thus changing the nature of the site.

The transition between the excavator’s phases ‘Byzantine I’ and ‘Byzantine II’ in particular may be looked at here: from a chapel to an architecturally completely different, possible caravanserai.

Two possible solutions can be considered for the reconstruction of the Armenian Garden’s history:

Either the earthquake occurred between Tushingham’s phases ‘Byzantine I’ and ‘Byzantine II’ and as a consequence, the former chapel with an apse was overbuilt by the suggested caravanserai (instead of rebuilding the chapel). In any case, these measures changed the nature of the site altogether. The other option is the modification of the caravanserai in Tushingham’s phases ‘Byzantine II’ and ‘Byzantine III’ might be a possible result of rebuilding measures following the earthquake.44

J. Magness has also reassessed the dating of the repairing of the city wall to the Early Islamic period (see below); as is analysed by A. D. Tushingham, this repair work corresponds with his ‘Byzantine II’ period.45 This dating would confirm that Tushingham’s ‘Byzantine II’ phase can be dated post-earthquake.

Consequently, the ‘Byzantine III’ phase was a time in which the Armenian Garden was extensively repaired and rebuilt. Perhaps this was necessary after a destructive event, such as an earthquake, similar to DEI area I.

Furthermore, the so-called ‘bins’ mentioned above, which can also be attributed to the possible early Islamic layers, contain a lot of burnt material and former building material, such as burnt plaster and tiles, as described by A. D. Tushingham.47 It can be suggested that this material could be the remains of the destroyed former buildings, the ‘Byzantine I’ structures. Those ‘bins’ were sealed, as described by A. D. Tushingham, by the latest ‘Byzantine III’ floor, which supports that argument.48 For this, a detailed find analysis of the content of these ‘bins’ would be necessary.

Certainly, this chapter cannot provide a complete detailed reassessment of all the stratigraphical contexts and corresponding finds of the excavation in the Armenian Garden; still, it can provide cause to reconsider the archaeological history of the site during the transitional period from the Byzantine to the Early Islamic period.
Footnotes

27 From 1962 onwards; the first year (1961) was under the direction of R. de Vaux and J. A. Callaway (Tushingham 1985, 3).

28 Tushingham 1985, 101, pl. 6.

29 Tushingham 1985, 101, pl. 6.

30 Without providing a further time frame for “short.”

31 Tushingham 1985, 101. It remains uncertain what exactly is meant by “washout.”

32 Tushingham 1985, 104.

33 Tushingham 1985, 101–02, pl. 6.

34 Tushingham 1985, 79.

35 Tushingham 1985, 79.

36 Tushingham 1985, 69.

37 Which is actually subdivided into IIIA (redressing the damage caused by the previous 'washout') and IIIB (actual rebuilding measures; Tushingham 1985, 103). 38 Tushingham 1985, 103–04.

38 Tushingham 1985. 103-04.

39 Tushingham 1985. 104.

40 Tushingham 1985, 104-05. Many earlier scholars, especially from the 1960s and 1970s, attributed any urban changes during this period to the `Muslim conquest, neglecting the possibility of the AD 749 earthquake. But this view is no longer reflected in modern research (Avni 2014, 14).

41 Tushingham 1985, 105-06. He wrote that the majority of the Umayyad and Abbasid coins stems from 'deposits that on stratigraphic grounds can be assigned to the fills chat precede the first medieval, that is Ayyubid, occupation of the site' (Tushingham 1985, 106).

42 Magness 1991, 212.

43 Zimni 2023; Namdar and others 2024.

44 We must also consider the possibility that several earthquakes or aftershocks occurred in a short time, causing two different “washouts” in the Armenian Garden.

45 Keeping in mind, that these repairs are either a result of the earthquake or might also be the result of the reconstruction of the city walls by Caliph Hisham.

46 Tushingham 1985, 65.

47 Tushingham 1985, 79.

48 Tushingham 1985, 79.

Notes and Further Reading
References
Wikipedia pages

Armenian Quarter

  • from Wikipedia - click link to open new tab