Reports
PLOS One (Feb. 2025): Understanding the history of the late Roman synagogue at Huqoq in Israel’s Galilee through radiocarbon dating and observations on site formation
American Journal of Numismatics 36 (2004): Robert Kool, “A Fifteenth-Century Gold and Silver Coin Hoard at Ḥuqoq/Yaquq,” American Journal of Numismatics 36 (2024) pp. 279–352.
Studies in Late Antiquity 8.4 (2024): “Samson in the Galilee—and Beyond: How New Mosaic Discoveries in the Huqoq Synagogue Have Revised What We Thought We Knew” (pp. 481–504).
Biblical Archaeology Review, Winter 2023: Warrior Women: Deborah and Yael Found at Huqoq (PDF)
Levant: 16 August 2022: A Late Medieval Synagogue at Ḥuqoq/Yaquq in Galilee?
Biblical Archaeology Review, May/June 2019
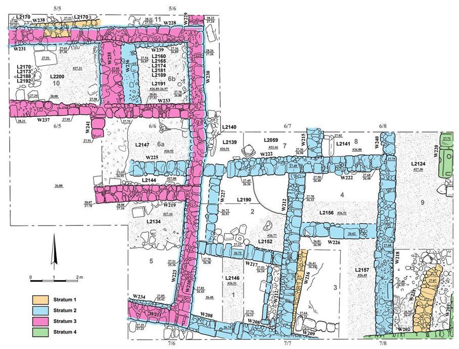
BAR Article: Inside the Huqoq Synagogue
BAR Article: Artistic Influences in Synagogue Mosaics: Putting the Huqoq Synagogue in Context
2014-2017 Preliminary Report
[Full resolution version of article available at https://unc.live/2zE1s3Z]Qadmoniot 156 (2018)
Hadashot Arkheologiyot
The staff of the Huqoq Excavation Project has released a preliminary report each year through the Israel Antiquities Authority Publication Hadashot Arkheologiyot. To access these volumes on-line, please follow the links below
Other scholarly publications:
M. J. Grey and C. S. Spigel, “Huqoq in the Late Hellenistic and Early Roman Periods,” in D. A. Fiensy and J. R. Strange (eds.),Galilee in the Late Second Temple and Mishnaic Periods, Volume 2, The Archaeological Record from Cities, Towns, and Villages (Minneapolis: Fortress Press, 2015), pp. 362-378.
M. J. Grey and C. S. Spigel, “News from the Field: Huqoq Excavation Project, Part I,” Bible Odyssey (2015) online at http://www.bibleodyssey.org/en/places/related-articles/huqoq-excavation.aspx.
J. Magness, S. Kisilevitz, K. Britt, M. Grey, and C. Spigel, “Huqoq (Lower Galilee) and Its Synagogue Mosaics: Preliminary Report on the Excavations of 2011-2013,” Journal of Roman Archaeology 27 (2014), pp. 327-355.
J. Magness, S. Kisilevitz, M. Grey, C. Spigel, B. Coussens, and K. Britt, “Huqoq 2013,” Excavations and Surveys in Israel (Hadashot Arkheologiyot) 126 (2014), at http://www.hadashot-esi.org.il/Report_Detail_Eng.aspx?id=12648.
J. Magness, “Burning Foxes in the Vineyards of Huqoq,” Et-mol 234 (2014), pp. 2-4 (in Hebrew).
“Huqoq (Lower Galilee) and its synagogue mosaics: preliminary report on the excavations of 2011-2013” (Magness, et. al.) – Journal of Roman Archaeology
M. J. Grey and J. Magness, “Finding Samson in Byzantine Galilee: The 2011-2012 Archaeological Excavations at Huqoq,” Studies in Bible and Antiquity 5 (2013), pp. 1-30.
D. Amit, “Mosaic Inscription from a Synagogue at Horvat Huqoq,” Biblical Archaeology Review (2013), posted at http://www.biblicalarchaeology.org/daily/biblical-artifacts/inscriptions/mosaic-inscription-from-a-synagogue-at-horvat-huqoq/
J.Magness, S. Kisilevitz, M. Grey, C. Spigel, and B. Coussens, “Huqoq – 2012,” in Excavations and Surveys in Israel (Hadashot Arkheologiyot) 125 (2013), posted at http://www.hadashot-esi.org.il/report_detail_eng.aspx?id=3331&mag_id=120
J. Magness, “New Mosaics from the Huqoq Synagogue,” Biblical Archaeology Review 39.5 (2013), 66-68 (http://members.bib-arch.org/publication.asp?PubID=BSBA&Volume=39&Issue=5&ArticleID=9).
J.Magness, “Spätantike Mosaiken in Huqoq entdeckt,” Antike Welt 5 (2012), p. 6.
J. Magness, “Huqoq – 2011,” in Excavations and Surveys in Israel (Hadashot Arkheologiyot) 124 (2012), posted at http://www.hadashot-esi.org.il/report_detail_eng.asp?id=1959&mag_id=119.



